联系我们投稿
灵感LAB - 空间灵感补给实验室
尖微外滩酒店设计·上海 | 目心设计研究室
0 FAVORITE1185 VIEWS0 COLLECTIONS
2022-03-21 RELEASE DATE
工业风格
极简风格

“新”与“旧”的融合和对照|

尖微外滩酒店(The Jump Bund Hotel)坐落在上海外滩及豫园旁,作为步行城市的一部分的小型精品酒店,它从一场封闭的设计开始。因为该地点位于城市的中心地带,并且靠近著名景点外滩及豫园,他们希望拥有一家可以独一无二的精品酒店。

 

上海·尖微外滩酒店设计

 

建筑本身是建造于20世纪40年代三层楼高的上海电报厂。精品酒店濒临豫园,同时与闪烁着璀璨灯光的外滩中心相对。目心设计研究室(MUXIN DESIGN)对这一建筑的改造设计理念基于“新”与“旧”的融合和鲜明对照,原有的混凝土结构大部分被保留还原,大量新加入细腻的水磨石,粗糙和细腻的对比仿佛在叙述着传统电报行业与现代化信息社会的变革。而对原建筑四层进行的露台改造,不仅与旧城民居产生了传统与现代情感上的共鸣,更为此建筑赋予了历史和本土文化的背景。

 

上海·尖微外滩酒店设计

 

与普通的酒店类型不同,原始自然采光和通风的不足使得我们更多地考虑到如何增加房间的舒适度及趣味性,尤其是在房间的布局上采用了不同的策略。一部分房间使用“园林”的概念; 将浴缸位于房间的正中央,使每个视角都能均衡受益,开放式的浴室同时获得良好的日光和室外新鲜空气。从而营造出通风的感觉和更多的呼吸空间。

 

上海·尖微外滩酒店设计上海·尖微外滩酒店设计

 

酒店走廊中意想不到的空间视觉组合在带来惊喜元素的同时,使酒店客人置于一种好奇感的状态,一种由视觉走廊和多样化居住体验所带来的关于上海的独特空间风味。

 

上海·尖微外滩酒店设计

 

这家酒店设计采用了尊重原始的方式。由于现有的公共空间局促,设计师希望创造出不同的序列和更多的空间体验,走廊不规则的灯带序列削弱了原始空间的曲折感,而框景式的灯带排列更是一个直观的实验,提升每一个入住人的好奇心。

 

上海·尖微外滩酒店设计上海·尖微外滩酒店设计

 

配色方案灵感来自大自然。木材,水磨石,暴露的水泥,工人在项目现场进行水磨石颜色混合过程,模塑和干燥。在设计和施工过程中,我们尽量利用可再生材料,减少能源消耗,减少运输成本,减少污染。      

 

上海·尖微外滩酒店设计上海·尖微外滩酒店设计

 

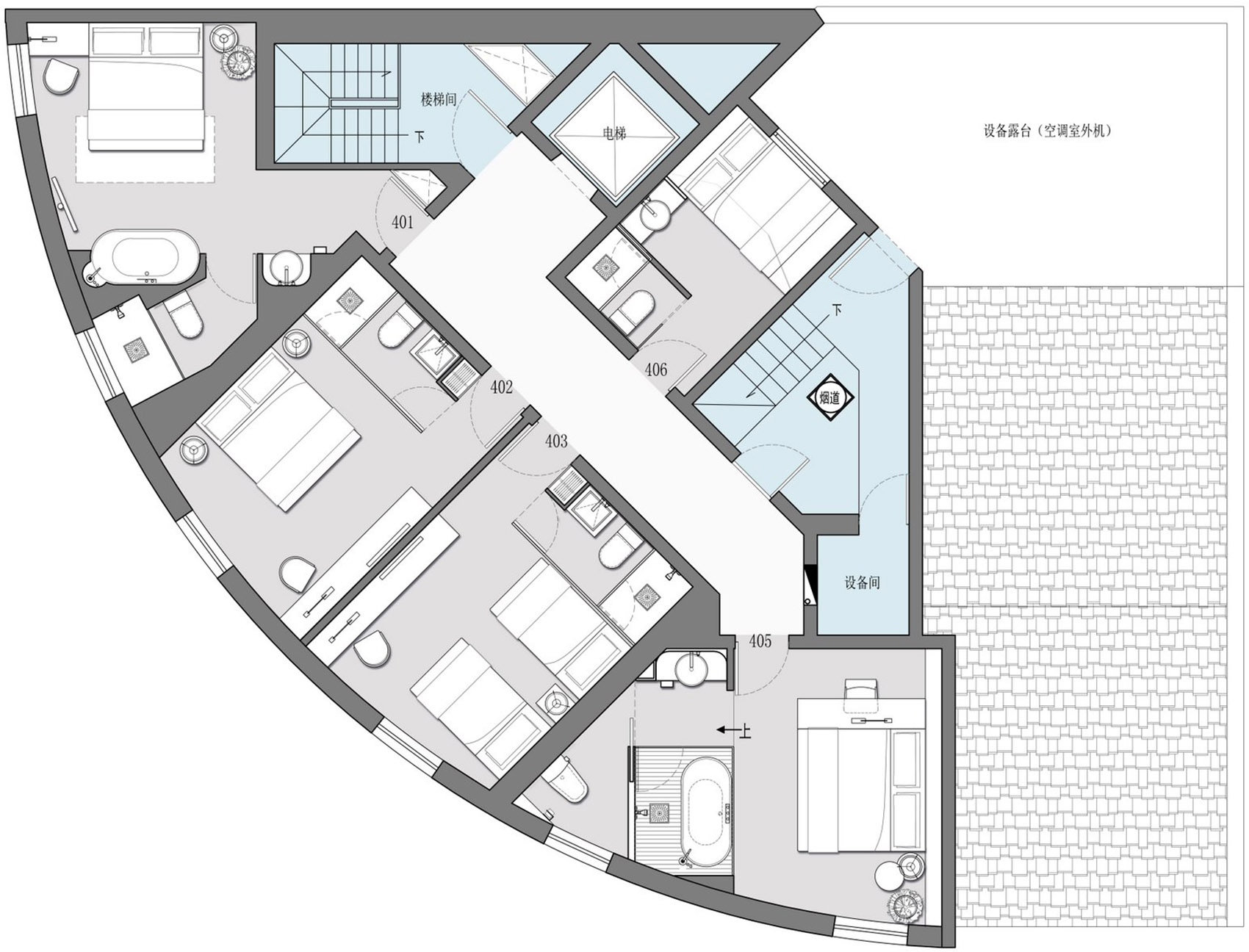
平面图:

上海·尖微外滩酒店设计

 

项目名称:尖微外滩酒店设计
项目地址:上海市黄浦区
设计公司:目心设计研究室
主创及设计团队:张雷 孙浩晨 姜大伟 欧阳波勇 苏权伟
设计年份:2018.5
建成年份:2018.10
建筑面积:660㎡
空间主材:水磨石 木材 水泥 混凝土
摄影师:张大齐
编辑版权©灵感LAB,禁止以灵感LAB编辑版本进行任何形式转载

 

 

关注公众号

关注抖音号