20世纪30年代,这里修筑了八条以我国著名关隘命名的道路,因此这一区域被称作“八大关”。八大关区域拥有着不同风格建筑伫立在不同的角落,让整个八大关融入了童话一般的意境。关于八大关的海,八大关有一条延伸入海的石头路,被看作是通往幸福的路。设计师W在海的这一边的尽头开拓了咖啡厅,正面对着八大关的海面,红瓦绿树,碧海蓝天也不过如此。
“无设计”作为一种全新的艺术表达,被设计师W放在sof诠释着,因整个店铺面对海平面,我们选择运用可推拉的落地玻璃来衔接室内外,整体空间不做过多的表达与炫技,设计师W只想用最简单的“真诚”来吸引来到sof的每一位顾客。
▼咖啡厅
▼从海边看向咖啡厅内
简单的红色洞石门头,更加凸显质感与层次,巨大的艺术留白,是想象力的载体,人的情绪意识,与物的精神哲思,敞开的玻璃门窗像人类的心房,迎接着每一口新鲜的海边空气,在纯净的审美框架中交融回响,让咖啡厅与海达成自然和谐的共识。
▼咖啡厅门头
进入到室内,仿佛一场优美的家具交响曲,红洞石材料需要经过多次的打磨处理,才能呈现出现在的致密结构、以及磨光性超群、色调柔和雅致同时又具有流畅自然的石肌理。
设计师W选用knead Armchair捏泥沙发,彰显原始流畅的轮廓线条,留有粘土手工捏制的拙感,造型如幽灵一般,也是在东方美学中发现小到人类的情绪,大到与这个宇宙发生的一切都息息相关。
暖黄色的木地板,还原自然的生活,木质纹理勾勒出自然质感的空间,让来到这里的每一位顾客都可以感受到温馨与舒适。顶部天花以大片留白作为基底,空间叙事随着每一件家具徐徐展开,温暖的、舒适的氛围才是他最终的目的,正如设计师W所说的“从走线的微小细节表达对设计的认真以及严谨”,看似简单的材料组合,实则充满了设计师对细节的把控。
▼红洞石餐桌
没有刻意地造型,也没有很多材料的拼接,就像站在sof看到的夕阳落入海面,只有简单却又热烈地“真诚”。
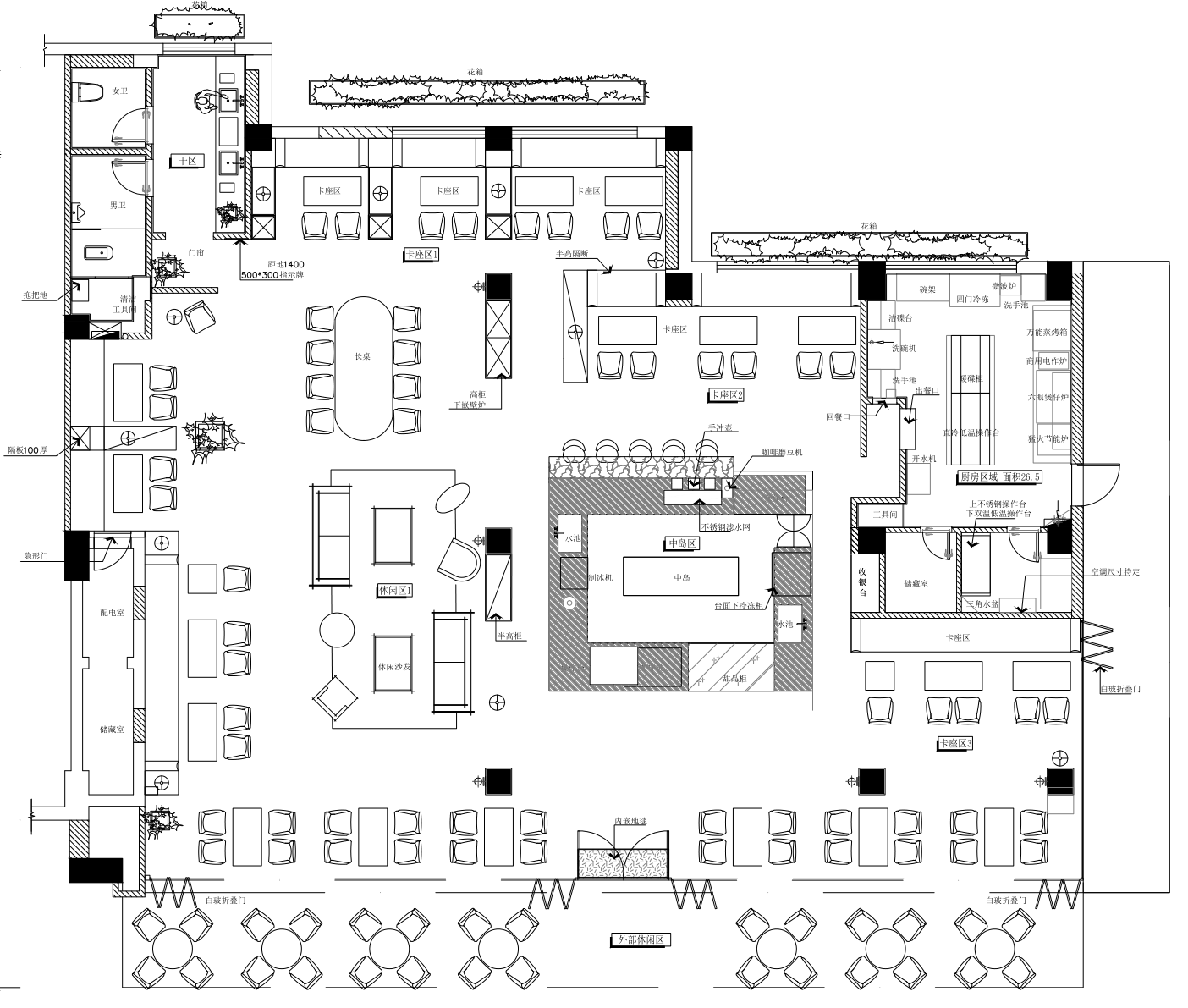
▼平面图
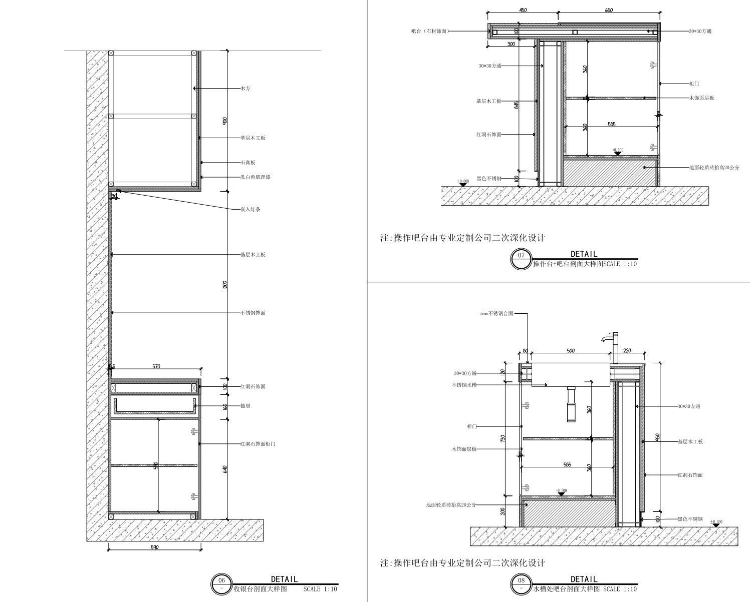
▼细节剖面
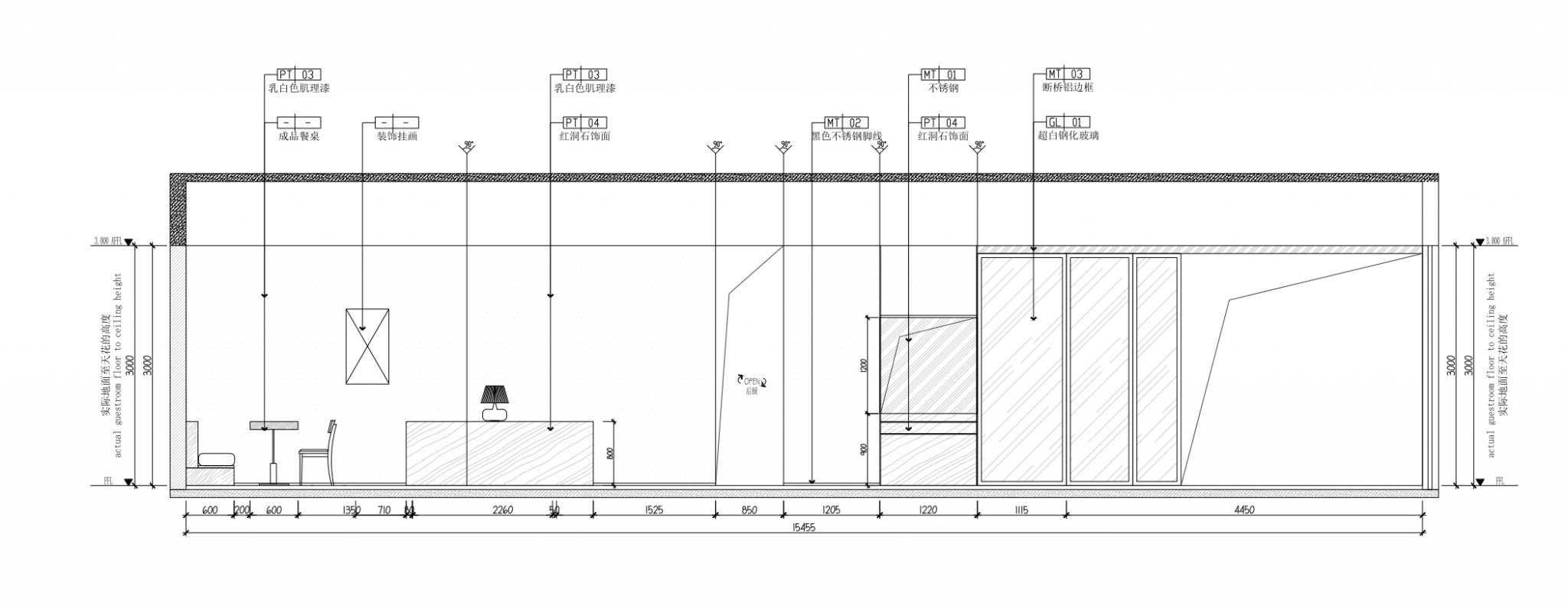
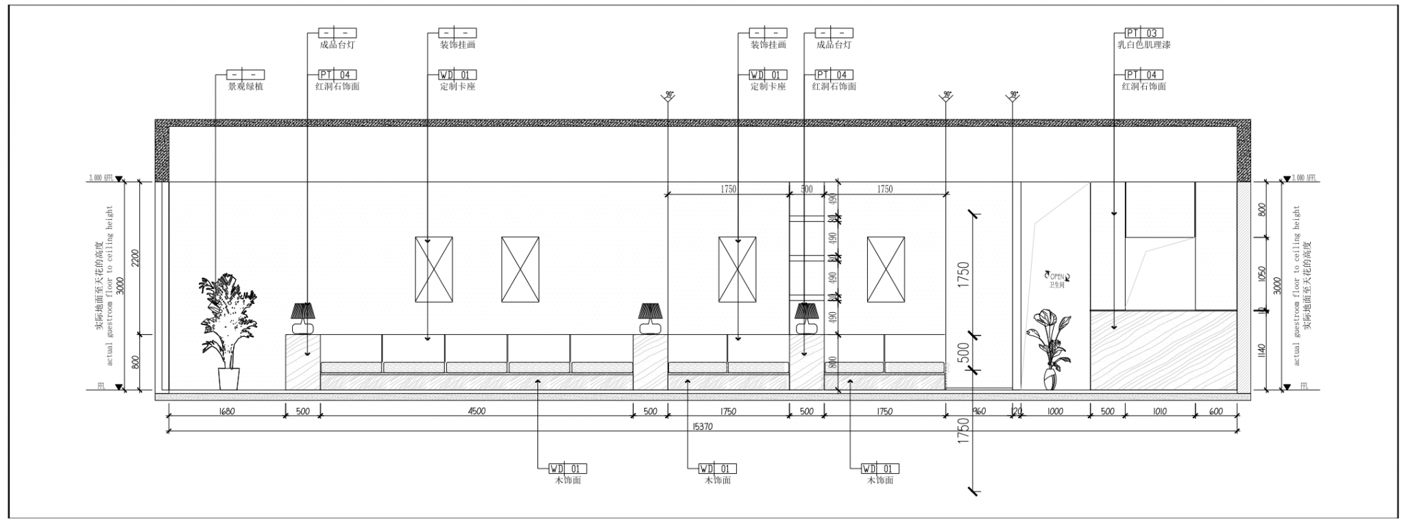
▼立面图
▼门头立面
项目名称:sof咖啡厅
项目类型:餐饮空间设计、咖啡厅设计、门头设计
项目地址:中国 · 青岛
室内设计:W.select design
主创及设计团队:W团队
建筑面积:307㎡
建成年份:2023.02
材料:红洞石、木地板、涂料、金属、不锈钢、陶瓷
摄影版权:W.select design
感写观览、登录灵感LAB账号、点击文章顶部🤍可收藏案例
更多该设计公司案例,请点击 → W.select design
©非特殊说明,文章版权归原作者所有
编辑版权©灵感LAB,欢迎转发,禁止以灵感LAB编辑版本进行任何形式转载
关注公众号
关注抖音号
HelloArt艺术客厅设计·杭州 | Artdeep艺痴设计
Harudot By Nana 咖啡烘焙店 · 泰国 | IDIN Architects
MOViE MOViE影城与库布里克书店-前滩太古里 · 上海 | LUKSTUDIO芝作室
Tanatap框架花园 · 雅加达 | RAD+ar
Dotcom Coffee青岛海边店 · 山东 | 龙工作室 Atelier LOONG
盛泽坛丘缫丝厂改造 · 苏州 | 平介设计