寓意人生修行的象征主义场所|
Wutopia Lab为唯品会设计的总部图书馆—充满象征和寓意的朝彻书屋the Satori Harbor 于11月在广州落成。朝彻出自《庄子·大宗师》,是道家修炼的一层境界,指透彻通达,有如朝阳遍照。于是俞挺先创造一个好物,把图书馆变成精巧复杂的人间世—一个抽象的港口城市;进一步则引导寄居其间的读者通过阅读以及体验而能悟达妙道外物,最后能作逍遥游。朝彻书屋其实就是个寓意人生修行的象征主义场所。
上:人间世(关于好物)
Chapter Ⅰ:IL MONDO (All things good and bright)
隧道
Tunnel
你要通过一个隧道才能到达这个城市。这是位于唯品会总部大楼18层和19层上的城市,需要花一点时间探索才能发现,也许会走错路。但不要紧,隧道尽头有一个巨大的聚声罩,你们能听到海浪的声音。你们能明白其实你们就在城市的地下,不久就能看到港口和大海了。
▼项目位于唯品会总部大楼18层和19层

▼从室外看好物港一侧


城市
City
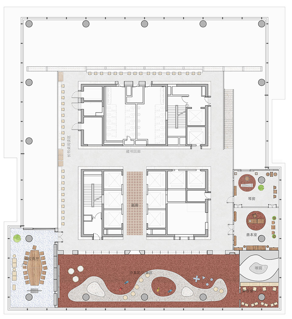
城内是善本室,琴室,会议室,沙龙,好物廊。所谓沙龙空间,就是一个为孩子们塑造的微地空间,孩子们可以在上面嬉闹攀爬,尽情的用自己的方式探索着这里,孩子们的沙龙也就是这个城市的后花园。唯品会总部的十九层空间是这个城市的内城。内城的重要去处是填满了唯品会精选好物的画廊—好物廊,它的原始象征是被琳琅满目的来自世界各地藏品所包围的欧洲沙龙。好物廊里镶嵌着各种私密的角落,人也是好物。好物廊的尽头圆形窗洞则似乎在暗示你可以看见一个未来的新广州的缩影。俞挺在这个曲折忽明忽暗的场所里试图扭曲时间与空间常规体验。
▼沙龙空间 – 为孩子们塑造的微地空间

▼孩子们的沙龙也就是这个城市的后花园

城外则是港口,沙洲,河滩和连绵的丘陵,它们就是大厅,咖啡区,漂浮这巨石般沙发的杂志阅览区以及城外最重要的场地—好物剧场。南向的好物剧场阶梯状迎向阳光,视野开阔而明亮,四下通透。你观看的不是日常的演出而是自然和城市的变迁。
▼轴测图

港口
Harbor
通过隧道,好物廊来到好物港的港口大门前。你可以在一个内凹的空间里稍稍休息。大门就在那里敞开,新世界就在那里等你。你可以看到航船以及巨大的红帆,正如几百年前的雄心勃勃的广州人在十三行的码头前看到的红帆那样,满载货物的大船就是希望。
▼好物港


连续的书架构成了好物港的内外城墙。你可以在城头看港口人来人往,船来船往,日出日落。港口在大航海时代意味财富以及未知的世界。俞挺对港口戏剧性人生的第一次理解来自于童年的电影,一万多人在马赛的港口欢呼“法老号”,这个场景让他热泪盈眶。以至于日后,他每每丧失信心的时候,都会想起那欢呼声“法老号”。
▼连续的书架构成了好物港的内外城墙


水击三千里
Three thousand blows
你继续站在船头,背后的红帆缓缓落下,待风起而济沧海。这时从室内或室外看过去,红帆就是一个关于不被物役,背负青天,扶摇九万里的宣言。
▼可以展开收起的红帆

坐忘
Sitting and forgetting
在好物港口,停靠着一艘白色的航船–好物舟。你可以慢慢走到船头然后站着,珠江就在你脚下千年一日般静静流过,右侧旧日广州十三行立面缓缓落下遮盖了书架,于此相对的是左侧看出去,远处就是当下壮观的城市轮廓线。但这一些似乎很重要又不太重要。在某个可能性上,你会忘记你想表达什么东西。总之,“无古今”。
▼好物舟船头

苍穹
Under the Dome
整个好物港被连续的拱所笼罩。苍穹之下,天,水和城市都是一个抽象的调子。唯品会图书馆本身就是一个收集好物的好物。是整座大楼一个超现实主义的存在。
▼由二层藏书回廊看好物港

▼通高的空间提供了极佳的自然采光

朝彻
Satori
好物港不是一个封闭的城市。它的城墙上有许多洞,光线可以不同角度流泻到城里,四下皆有光。而城外的风光和甚至更远的广州的风景也随着光线流泻到城内,它们叠在一起,似乎有些不真实。是的,好物港就是个没有时间的城市。
▼城墙上有许多洞,光线可以不同角度流泻到城里


▼由圆窗看画廊与书架

“在我苦难的尽头有一扇门”
下:逍遥游(关于修行)
Chapter Ⅱ:A Happy Excursion (Self-practice)
心斋
Heart Fasting
“虚者,心斋也”,谓摒除杂念。基于此,除了保留一些片段现世的记忆比如花砖和满洲窗外,俞挺剥离了不必要的颜色,材料,肌理而将整个接近2000平米的图书馆都统一在一个连续不断灰白色和石材质感之中。
▼2000平米的图书馆都统一在一个连续不断灰白色和石材质感之中

▼电梯厅

▼走廊

见独
Seeing the oneness alone
好物港内城的尽头,俞挺安置了一个任务书没有的场所。天地浑然一体的蛋形洞穴间-小蓬仙馆。特别设计的光装置将整个空间渲染得失去了时间与空间感受。没有上下,也没有前后。你会呆呆地站在这里,然后有些适应。光线从洞口游了进来,你或许可以与天地精神往来。
▼蛋形洞穴间轴测分析图

▼小蓬仙馆内部

▼装置细部

▼由外部看装置内部

“从我生命的核心,涌起巨大的喷泉,湛蓝色投影在蔚蓝的海水上”
彩蛋
TO BE CONTINUED
朝彻书屋是Wutopia Lab在广州的第一个室内项目。它是俞挺为广州建造的两艘船的第一艘。在明年,你们或许看到第二艘船。不过上面装载的不是好物,而是酒神的信徒们。
▼好物港意向图

▼书架与红帆轴测图

▼下层平面图

▼上层平面图

项目名称:“朝彻书屋”书店
项目地址:广东省广州市海珠区鼎新路128号唯品会总部大厦18、19楼
设计公司:Wutopia Lab
主创及设计团队:俞挺、郭宇辰、杨思齐、詹孛迪
项目经理:濮圣睿、李莎、刘辉
设计咨询:大于建筑 | STUDIO YUDA
深化团队:上海呈煜空间设计有限公司
施 工 图 :戴云峰、吴晓艳、郭佳女、赵如意
机电设计:张敏敏、史江龙、匡晶、朱步森、胡磊
照明顾问:张宸露
结构设计:于军峰
施工单位:罗志跃
项目年份:设计年份:2019.7 建成年份:2020.10
建筑面积:2200㎡
空间主材:灰泥、水磨石、地毯、花砖、玻璃、LED灯、发光软膜
摄影师:CreatAR Images
编辑版权©灵感LAB,禁止以灵感LAB编辑版本进行任何形式转载

关注公众号

关注抖音号

“钟书阁”书店(欢乐港湾店)·深圳 | 唯想国际XL-MUSE

MOViE MOViE影城与库布里克书店-前滩太古里 · 上海 | LUKSTUDIO芝作室

上海市工人文化宫茉莉花剧场改造项目·上海 | 上海华建工程建设咨询有限公司

盛泽坛丘缫丝厂改造 · 苏州 | 平介设计

礁石书塔 · 深圳 | 城外建筑

中国土家织锦艺术博物馆-土家之花 · 湖南张家界 | 风合睦晨空间设计