绝美的山水酝酿出文化的自信,悠久的人文催生出美宿的问世|
“缦山•一色”精品民宿海景酒店座落在中国大理一个美丽的小渔村,这个小村子方圆不过几百米,却有着坐观驰名中外的大理山水—-翠洱银苍所独有的视角,把千年古国大理依山傍水,海天一色的壮美一览无余。






每当海心有渔船漂过,层层云海倒映海面,不禁让人忘乎所以,恍惚间已化身为大鱼,长出了鲲的翅膀。



一山一水已让世人艳羡不已,纷至沓来一宿难求!



这个小村还有个挺斯文的名字,文笔村。绝美的山水酝酿出文化的自信,悠久的人文催生出美宿的问世。





背上行囊,揣个饭团,行到水穷处,坐看云起时。



忘却周遭,刘禹锡有句“流水隔远村,缦山多红树”,颇有陶潜之风,会意拈花一笑。


决意,摒弃国外古堡的做作、忽略广漠高耸的堆叠、不理内饰金碧辉煌的冷漠、乱翻工业时代钢铁的斑驳。



定案,极简主义美学调,禅音一弦云海谣。想说,纵是两栋乡村屋,不负山水不负卿!
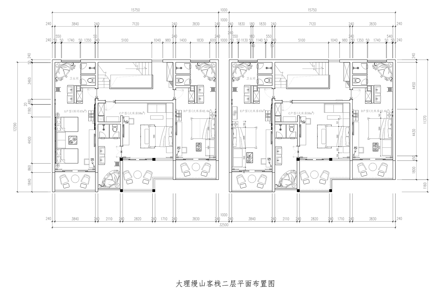
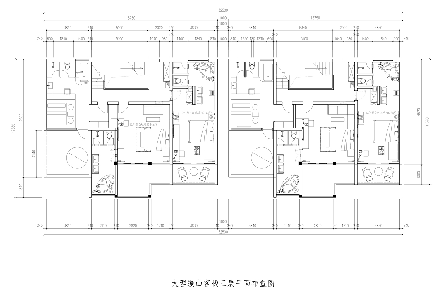
平面图:



立面图:



项目名称:“缦山一色”海景民宿
项目地址:云南省大理市海东镇文笔村3社54号
设计公司:长空创作
主创及设计团队:张宝华、刘思唐、靖旭初、蒋应强、王春艺、李泉江、周林华
软装设计:定制家俱、渔船、枯枝、布艺(大理民间扎染)
建筑面积:1662㎡
空间主材:原木、本地五花石、本地黑石、钢材、玻璃、壁布、瓷砖
摄影师:靖旭初
编辑版权©灵感LAB,禁止以灵感LAB编辑版本进行任何形式转载

关注公众号

关注抖音号

大隐与迹・四姑娘民宿 · 成都 | 万谦集环境艺术设计 + 自由实践室

温江悦椿酒店 · 成都 | CCD香港郑中设计事务所

杭州中心四季酒店 | Avalon Collective

八亩晴川民宿 · 广东 | 本森空间设计

东京“安缦AMAN”精品度假酒店·日本 | Kerry Hill Architects

三禾 • 稻里温泉度假酒店 · 广东 | hia高地设计

京都嘉佩乐酒店 · 日本 | 隈研吾建筑都市设计事务所 + Brewin

宋麓书院 · 浙江 | 造园建筑 + 中国美术学院建筑艺术学院

黄山紫阳烟雨度假酒店· 安徽 |风合睦晨

不在山林·泸州梨花村· 四川 | 小隐建筑

九寨沟日赛谷丽思卡尔顿隐世酒店 · 四川 | 中国建筑西南设计研究院有限公司 + WATG建筑设计事务所

云躲躲·烟花小屋 · 湖南 | EERI 建筑设计工作室