2016年11月16日,由Schmidt Hammer Lassen Architects设计,位于瑞典南部城市马尔默的Malmö Live在正于柏林举行的2016年世界建筑节中胜出,夺下了已建成建筑综合体分类的大奖。自2015年春天正式开放以来,这里汇聚了大量的人气,成为了城中最受欢迎的文化聚集地和地标,将城市多样而又平易近人的特质通过建筑的形式展现出来。

Malmö Live是瑞典马尔默的标志性建筑,其开放,富有表现力,动感,内部空间为城市提供多样性和亲切性的公共场所。 Schmidt Hammer Lassen Architects的高级合伙人Kristian Ahlmark提到该建筑的设计旨在融入马尔默,因此选材,色彩和尺度均考虑城市文脉,不过,建筑设计本身却是放眼未来。

Malmö Live位于城市运河旁,由几座高低不一的白色方体建筑组成,立面表达匀致统一。整体如同一个建筑雕塑。

一道横跨运河的桥梁直达建筑主入口广场。建筑内部多样化的功能组合在一起像一个中世纪小城,而大堂就是街道,弯曲的“街道”贯穿整个楼宇,让所有功能紧密联系。酒店大堂拥有惬意的小型聚会场所,人们可在这里欣赏运河美景。




Schmidt Hammer Lassen Architects的高级合伙人Kristian Ahlmark继续告诉我们,被分解成更小实体的建筑具有十分强烈的层次结构和视觉规模,整个体量有利于与环境(周围的道路,广场,公园,运河)进行交互,重新定义了带状滨水空间。


建筑内部还有一个大型的交响乐音乐厅,一个多功能大厅和一个会议厅。这些公共场所有一个“城中城街道”概念的公共交通空间联系,这个“街道”空间采用了黑色混凝土,石材,木材和黄铜打造。





音乐厅内部设计通过与Akustikon合作设计,打造出世界一流的音效空间。同时该空间的光环境和根据表演氛围进行调节。




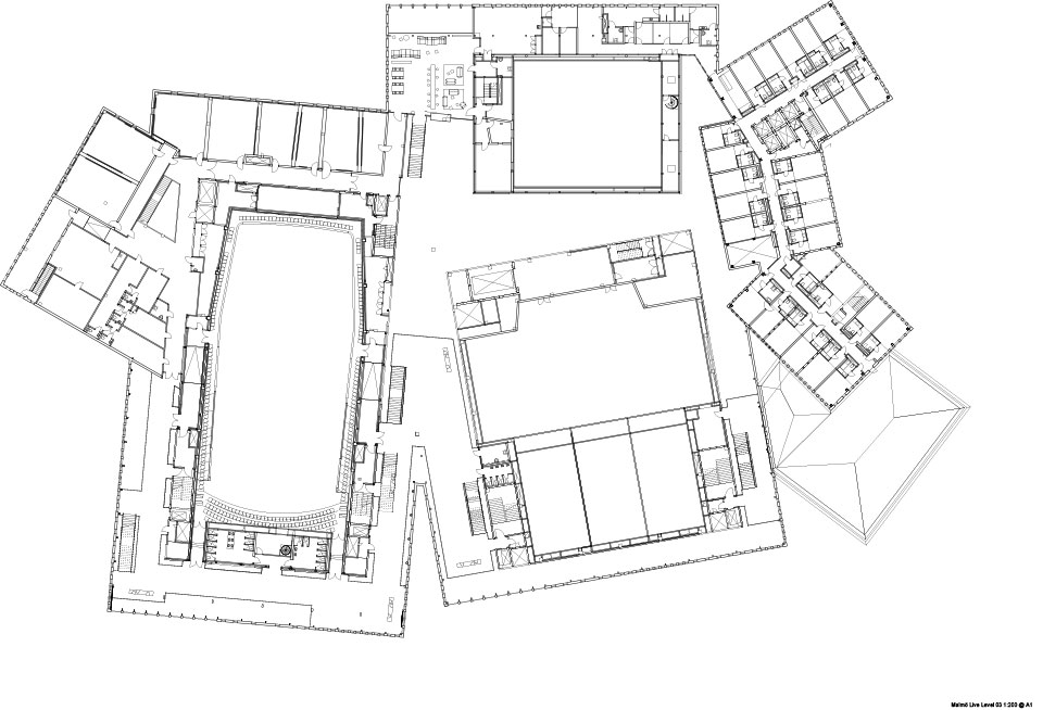
▼平面图

▼ 1F

▼ 2F

▼ 3F

▼ 4F

▼剖面图



项目名称:Malmö Live获2016年世界建筑节全球最佳综合体项目大奖
项目地址:211 18 Malmö,瑞典
设计公司:Schmidt Hammer Lassen Architects
音乐厅客户:City of Malmö
客户:Skanska Sverige AB
景观设计师:SLA
施工单位:Skanska Sverige AB Other
合作者:Akustikon
可持续性:Tagetting LEED Platinum
项目年份:2015年
建筑面积:54000㎡
摄影师:Adam Mørk
编辑版权©灵感LAB,禁止以灵感LAB编辑版本进行任何形式转载

关注公众号

关注抖音号

九寨沟日赛谷丽思卡尔顿隐世酒店 · 四川 | 中国建筑西南设计研究院有限公司 + WATG建筑设计事务所

阿那亚入户大堂·三亚 |是所设计

容居·沙港田园民宿 · 上海 | 得当设计

Mountaintop Bilpin 度假屋 · 澳大利亚 | IAPA

凯州新城中央音乐公园-婚礼堂及酒店 · 四川德阳 | STUDIO QI建筑事务所

丹棱老峨山居度假酒店 · 四川眉山 | 門口建筑工作室