在莫斯科东南部——城市主要的工业和居住区,创意和IT产业正蓬勃兴起,Dominion办公楼是该区域第一批产业配套建筑中的一座。项目位于Sharikopodshipnikovskaya大街,临近Dubrovka地铁站和公共电车站。

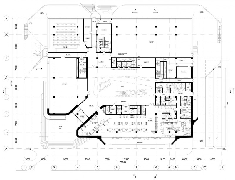
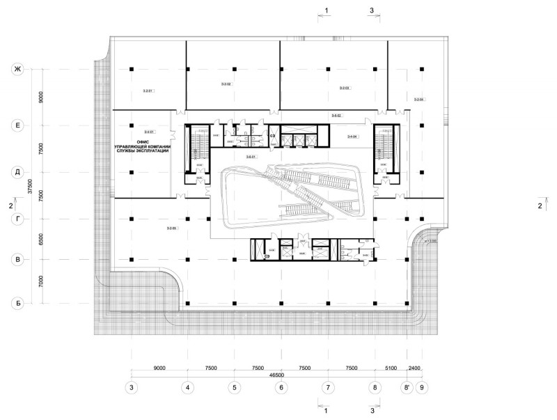
建筑主体由一系列相互偏移的楼层叠加而成,各层的曲线元素将之联系成一个整体。中庭空间贯穿所有楼层,将自然光引入到建筑中来。


与外立面一层层伸缩的外形相呼应,在建筑内部,每层的平台也向着中庭出挑。极具造型感的楼梯通过中空区域将各个楼层串联起来。

位于地面层的餐厅,将中庭和室外空间相联通,并一直延伸至街边。中庭周围是咖啡和甜品区,使得此处成为多个楼层的共享空间,鼓励同在这里工作的人们彼此交流以及不同公司、不同行业间互助合作。许多初创的IT和创意企业认为集体探讨的文化是其发展进步的重要动力,Dominion办公楼的通过其开敞式的设计强化了这一概念。






办公室空间按照标准的直线排布的开间来设计,以适应规模不同的公司的需求。在中庭和电梯的外围是防火通道、洗手间和设备井,这些服务空间各自形成核心,为办公空间提供了一定的私密性,且核与核之间留有透明的缝隙,使中庭的光线得以进入办公区。




围绕中庭的核心筒和靠近建筑外缘的一圈柱子是建筑的主要支撑建构。相互偏移的楼层通过对侧的施重来保持平衡。某些区域的柱子被取消,通过横梁将荷载转移,从而保证空间的连贯性,为需要大空间的租户或者举办公共活动提供场地。






项目名称:Dominion办公楼
项目地址:美国莫斯科
业主:Peresvet Group / Dominion-M Ltd
设计公司:扎哈哈迪德建筑事务所
设计总监:Christos Passas
主创及设计团队:Zaha Hadid, Patrik Schumacher,Veronika Ilinskaya, Kwanphil Cho,Emily Rohrer, Raul Forsoni
当地建筑师:AB Elis有限公司
立面顾问:Ove Arup London, UK
结构工程师:Mosproject
混凝土工程师:PSK Stroiltel Promstroicontract
MEP和总承包商:斯特罗集团
电气MEP:Novie Energiticheskie Reshenia
立面承包商:StroyBit
立面承包商:Prostie reshenia/ALUCOBONDTM
玻璃承包商:MBK Stroi
室内承包商: LCC
Contractcity GRC:Architectura Blagopoluchie/Facade Light
照明顾问:FisTechenergo
家具承包商:M系数
建筑面积:21,184㎡
编辑版权©灵感LAB,禁止以灵感LAB编辑版本进行任何形式转载

关注公众号

关注抖音号

Escenario SHIROKANE住宅综合体·日本 | Sasaki Architecture + YTRO Design Institute

重庆来福士·重庆 | Safdie Architects

盛泽坛丘缫丝厂改造 · 苏州 | 平介设计

通州潞城市民中心·北京 | 意度建筑

“漂浮”的腾讯总部 · 深圳 | 马岩松MAD

福南·新加坡 | Woods Bagot