面朝洱海,背倚苍山|
大理是难得的自然风光和人文环境都相当出色的地方,明代地理学家王士性的文章中可见一斑:“山有一十九峰,峰峰积雪,至五月不消,而山麓茶花与桃李烂熳而开。且点苍十九峰中,一峰一溪飞流下洱河。而河崖之上,山麓之下,一郡居民咸聚焉。四水入城中,十五水流村落,大理民无一垅半亩无过水者。又四五月间,一亩之隔,即倏雨倏晴,雨以插禾,晴以刈麦,名甸溪晴雨。余游行海内遍矣,唯醉心于是,欲作菟裘,弃人间而居之。”
▼鸟瞰图

大理这片水土近些年滋养出不少有趣的建筑实践,独特的场地环境为设计提供了一种全新的介入方式。大理拾山房精品酒店位于苍山国际高尔夫社区,背倚苍山,面向洱海,是风水绝佳之处。苍山山麓较高的地理位置为其提供了全景洱海和大理古城的视野,向东侧看去,不远处崇圣寺层层楼阁从三塔一直绵延上苍山山腰,重檐的大殿掩映于茂林之中,大理山川之壮美,此处一览无余。
▼建筑体量与自然和谐相融

建筑以谦卑的姿态融入场地之中,贴近苍山,收容洱海,和自然和谐相融。建筑位于苍山山麓一块坡地之上,山林葱郁一路蔓延向上,穿过山岚,联结上山顶的积雪和流云。于建筑内仰首观苍山,是为“高远”,青峰浮岚,山势逼人,巍峨若《溪山行旅图》;越过层叠山林农田远望大理古城,是为“深远”,纤陌纵横,黛瓦绵延,深邃若《青卞隐居图》;屋顶露台之上俯首观洱海,是为“平远”,湖水盈盈,小舟翩翩,清旷若《富春山居图》。拾山房以一系列叙事性空间融入叙事性的场地,营造出独一无二的场所体验。
▼酒店外观


▼建筑近景


▼庭院

入口位于建筑东北角,并不十分起眼,由路面下几个台阶,正对着的是侧院里的镜面水池,池中植一棵高大有年份的花红果树。拐过入口门廊,进入接待厅,以一种较为婉转的方式开始空间体验。承接入口空间的是位于中心的大厅,两层通高,形成整个首层的核心空间。巨大的上悬式壁炉挂在大厅的中心,强化了空间的核心感,其他的公共空间皆围绕其展开。
▼入口处的水池

▼双层高的中心大厅是首层的核心空间


▼巨大的上悬式壁炉挂在大厅的中心

▼公共空间



大厅前后各有一个庭院,增加采光的同时也为下沉的首层提供了内向的景观。两个庭院和大厅之间都以落地玻璃连接,视线可以在前后院之间交流,形成一种透明性,同时与东西向楼梯和走道所形成的主流线发生交错。下沉的前庭和后院是对自然坡地的呼应,同时也避免主干道的人流车流所造成的干扰,营造了一个安静的独立交流空间。
▼庭院和大厅之间以落地玻璃连接


▼交通空间


首层以公共空间为主,一到三层则是客房。每间客房都设计有巨大的露台和落地窗,最大程度将苍山洱海的绝妙景观收入房内。露台向外出挑,各层之间相互错落,为立面增添些许变化,也令整个建筑显得更为轻盈。
▼13间客房皆设有露台和落地窗


▼房间细部


▼房间露台

▼浴室


顶层是整个建筑的高潮。北侧面向洱海有一个长方形的浅水池,仿佛一面镜子收入大理最曼妙的流云,又像是洱海的一种微妙延续,将视线送出远方。这种无边际水池所带来的仪式感令拾山房的建筑空间达到一个高潮,也像是对于自然美景的一种敬畏与郑重。而面向苍山的一侧则是一个三面透明的阳光房,两级台阶的高差将这个阳光房的空间微微抬升,赋予其更为贴近苍山的姿态。家具都是低矮的几凳,盘膝而坐,山林苍翠环绕,倒生出几分禅意来。
▼顶层是整个建筑的高潮

▼北侧面向洱海的长方形浅水池

▼夜景

▼阳光房朝向苍山



▼两级台阶的高差将空间微微抬升

顶上两方露台则是赏景最佳地点,抬首苍山流云,俯首洱海古城。到了夜晚,四周安静沉寂,只有山风松涛的声音宛如清亮的长啸。点上蜡烛,小酌一杯,夜色中洱海畔的古城和村落有明灭的灯光闪烁,好像身处的建筑空间消解在夜色中似的。
▼露台景色


拾山房在材料的运用上也秉持着低调的特点。主体是略带粗粝的清水混凝土,配以木格栅和木质的窗框,顶层则是以木为主,与自然更为相融。首层院落则有山石堆砌的围墙,从坡地里长出。整体用色也非常克制,在这山水之中丝毫不显突兀。
▼山石堆砌的围墙带来原始的自然感


拾山房的业主李骏、何飙同时也是拾山房的设计师,这座项目完成了作为建筑师的他们在学生时代就在心中埋下的情怀梦想。从开始的项目选址拿地、设计构思、现场监理、施工指导,到最后景观所呈现的每一块石头、每一棵树木、每一株花草,都能感受到设计师所投入的对于大理和生活的热爱,极富感情的设计所达到的流畅和动人的细节在拾山房中完全可以打动每个居住者的心。室内设计由尚壹扬装饰的谢柯、支鸿鑫完成,他们同时也是建筑师多年的好友,对项目相同的认知、默契和了解带来了非常高的配合度。室内的家具大多由设计师亲自在东南亚多个国家选购,质感和配色都十分契合建筑本身的气质,不同材质的家具所带来的混搭气质也给每个空间进行了二度定义。
▼室内一角


天气晴好的时候大理的阳光非常干净纯粹,因此光在大理对于建筑的空间是非常重要的因素。拾山房内的许多空间都有对光的设计,巧妙利用阳光在室内形成极其动人的光影变化。顶层的四面玻璃以及天窗,每间客房内面向露台的落地窗,都是对阳光最好的呼应。而室内设计在物件陈设的设计上也非常细致地考虑了光影的影响,木柜、陶罐和挂饰的几何关系在光影下显得格外好看,因此每一个角落的细节都经得起推敲。
▼物件陈设也非常细致地考虑了光影的影响


拾山房精品酒店共有1500㎡左右的建筑面积,仅设13间客房,配合周围开阔的风景,整体室内的空间尺度都显得宽松而协调,给入住者非常舒适的居住体验。策划投资建设经营一体化所带来的控制性和良好细致的服务也进一步提高居住的质量。拾山房内叙事性空间所带来的温度和人情味是最为动人的部分,它展现了功能主义设计中所迷失的人文价值,以一种温和的方式回应自然,融入自然,消解建筑于环境之中,同时带给居住者富有个人情感的不同居住身心体验。
▼建筑以一种温和的方式回应并融入自然



▼温度和人情味是拾山房最为动人的部分

▼细部

▼施工场景




▼首层平面图

▼顶层平面图

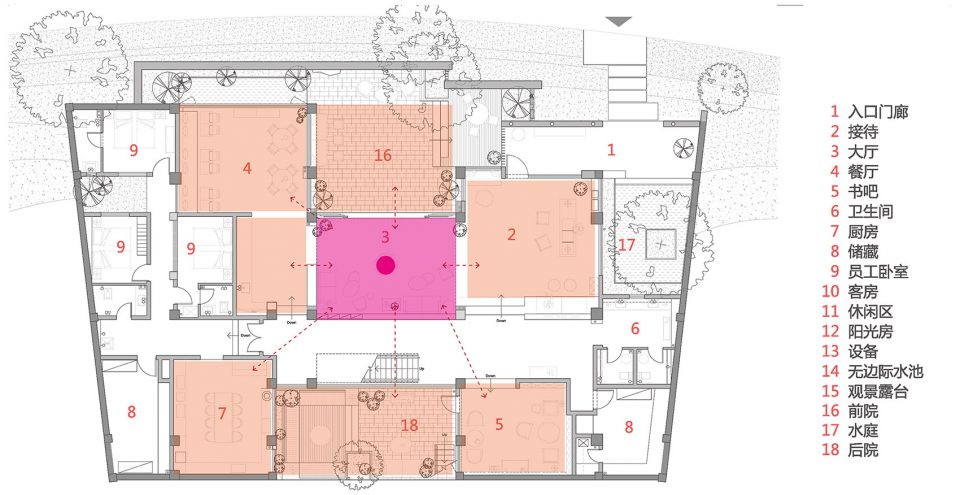
▼核心空间分析图

▼庭院分析图

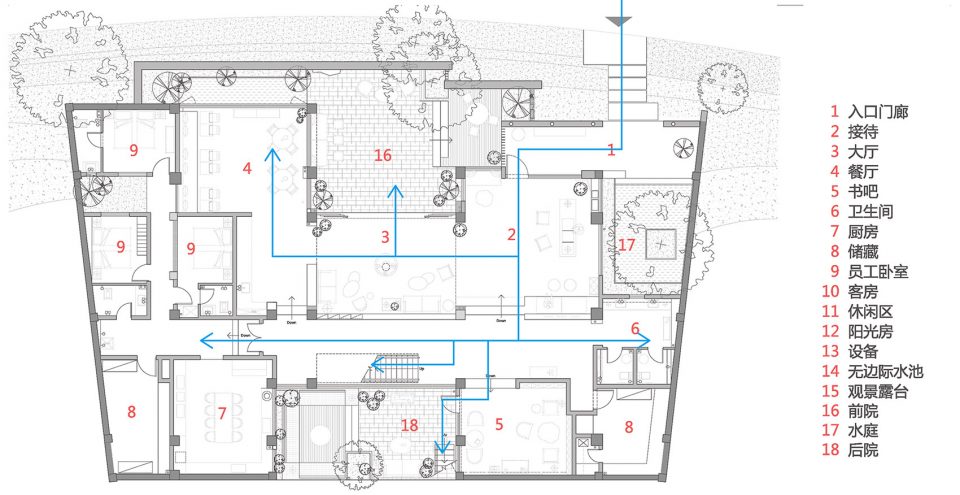
▼流线分析图

▼视线分析图

项目名称:大理拾山房精品酒店
项目地址:云南大理
设计公司:悦集建筑
主创及设计团队:李骏、何飙、胥向东, 谭珂
室内设计:尚壹扬设计–谢柯、支鸿鑫
设计年份:2015年
建成年份:2017年
建筑面积:1500 ㎡
空间主材:木材 钢 混凝土 玻璃
摄影师:存在建筑、感光映画
供稿单位:悦集建筑
撰稿:王瑶
编辑版权©灵感LAB,禁止以灵感LAB编辑版本进行任何形式转载

关注公众号

关注抖音号

九寨沟日赛谷丽思卡尔顿隐世酒店 · 四川 | 中国建筑西南设计研究院有限公司 + WATG建筑设计事务所

阿那亚入户大堂·三亚 |是所设计

容居·沙港田园民宿 · 上海 | 得当设计

Mountaintop Bilpin 度假屋 · 澳大利亚 | IAPA

凯州新城中央音乐公园-婚礼堂及酒店 · 四川德阳 | STUDIO QI建筑事务所

丹棱老峨山居度假酒店 · 四川眉山 | 門口建筑工作室