本项目位于绍兴市会稽山旅游度假区宛委山下,建筑面积为26141.84平方米。兰亭安麓约五十幢具有200-400年历史,每一栋建筑都使用了明清两代徽派住宅,经过200多位匠工精心修复而成。地块内建筑异地迁建的单层木结构建筑,多用于度假客房,建筑高度约为5米。两层木结构为酒店餐饮配套用房,建筑高度第一层层高4.1m,第二层层高3.7m。建筑在满足现代使用需求和现行规范基础上,尽量保持建筑的原有风貌尽量不加建多余建筑。
▼项目鸟瞰外观

▼远景鸟瞰

整个建筑群结合山地建造,尽量保持原有地形地貌和山体的冲沟,不做过多装饰,打造了一个世外桃源般的高端隐世酒店,一个自然的村落呈现在我们的眼前,给人们的休闲度假提供了一个很好的场所。兰亭安麓用简约和精致向中国传统文化致以最崇高的敬意。
▼鸟瞰,项目依山势而建


▼见龙潭鸟瞰

在兰亭安麓中国文化与现代时尚并存,与自然融合。从古至今的穿越,体验传统、现代、时尚融合的生活方式,可以从宛委山俯瞰这片世外桃源,建筑依山势而建,高低错落,树木掩映。灰瓦白墙的江南别院,隐现于清雅幽静的山脚下,传承着百年老宅的经典韵味。约五十幢具有200-400年历史,经精心保护典藏修复而成的古建筑群组成,成就独一无二的古建度假酒店体验。
▼传统建筑与自然

粉墙、黛瓦、马头墙这些众所周知的徽派建筑特色,更是表现了徽派建筑的精巧艺术成就,使整个酒店更显精致简约。朴而不素,华而不奢,雅而不俗是酒店的写照,完整传达徽派特有的清雅美学。兰亭安麓的每一栋建筑都使用了明清两代徽派住宅、家具、三(砖、木、石)雕等方面的收藏。在江南传统古民居的木雕中,做工精细考究,最为吸引眼球的是“牛腿”。它同时也是房子装饰的最大亮点。
▼传统建筑细部

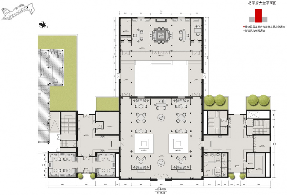
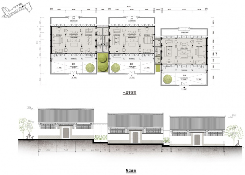
穿过一片樱花林后首先来到的是原属安徽将军府的正厅。将军府用材粗壮、高大巍峨、雕饰丰富,它拥有双天井、罗锅椽、圆柱雕础与青砖铺地。后院看出去是碧绿的见龙潭。酒店有35栋、88把钥匙的套房别墅,以及具有安麓品牌属性的精选附属设施。基础房型“宛委阁”60平方米,“阳明阁”独门独院,“兰亭阁”临水而居,还有8套泳池别墅“安麓阁”。所有客房都有地暖、BOSE音响、岛屿式浴缸干湿分离。 酒店与自然融合, 为宾客提供一处可提供宁神静气、返璞归真的休闲胜境。 采用大量原生态木材 、手工艺品为你引荐一段充满生态的下榻体验。在保留了原貌独特风格的基础上进行了创意性改造,使得其性能与设施有了极大提高又保留江南风情。 景观独具匠心地将地形改造出了“三叠泉”的效果,澄澈的溪水从山涧流下。这正像《兰亭集序》中描述的“曲水流觞”,大家坐在溪流两旁,让酒杯从上游顺流而下,停在谁的面前,便由谁取杯饮酒赋诗,悠然惬意。
▼项目主要景观节点

▼古桥景观

▼酒店公区建筑外观


▼传统民居复原的若耶音乐厅

▼单层传统民居客房


▼单层民居客房入口庭院

▼双层传统民居客房

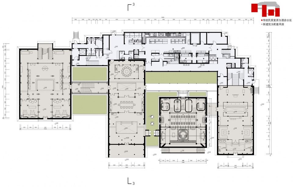
兰亭安麓有一个全日餐厅,餐厅共有 94个室内餐位和一个包厢。提供本地风味菜肴及各式西餐。有一个400m2无柱宴会厅,均为官厅原样重建。 无论是商务会议或是婚宴庆典,都可以一应满足。 也可为宾客量身策划妙趣横生的国学文化体验。 您可以探秘绍兴的自然环境,与大自然亲密互动。 您也可以探索古时人文历史,感受这座城的悠悠岁月。
▼茶室天井

▼单层传统民居客房室内


酒店所在的宛委山不仅自然景观优美,人文也十分丰富,龙瑞宫,葛仙翁炼丹井,苗龙升仙石,王守仁求学的阳明书院等众多遗迹点缀了阳明洞天,使其具有浓厚的道教文化色彩。
▼夜景


消防设计方面,经过建筑专家的多轮讨论和木结构的专题消防论证,对于木结构构建耐火极限达不到现行规范要求的建筑,设计采用辅助加强消火栓、喷淋保护,辅以局部饰面型防火涂料。
节能设计方面,木门窗均采用实木花格窗及中空玻璃的设计,保证使用上的舒适性,又保持了建筑的风貌。在外墙保温上,使用保温砂浆结合纸筋石灰墙的工艺,和传统工艺结合,使得粉墙黛瓦的建筑风貌经过一段时间的自然处理,很快得以呈现。
▼传统民居复原过程

▼地形剖面图

▼将军府大堂平面图

▼酒店公区平面图

▼酒店公区剖面图和立面图

▼单层传统民居客房平面图和立面图

项目名称:兰亭安麓酒店
项目地址:浙江省绍兴市越城区阳明路27号
设计公司:华汇集团|伍维设计工作室
主创及设计团队:唐秋芳、卜呆丁、祝丹红、李治跃、朱益民、夏军
设计年份:2011.5-2012.3
建成年份:2014年
建筑面积:26141.84㎡
空间主材:石材 木材 瓦
摄影师:秦森集团,华汇集团 伍维设计工作室/章鱼见筑
客户:秦森集团
编辑版权©灵感LAB,禁止以灵感LAB编辑版本进行任何形式转载

关注公众号

关注抖音号