威望酒店位于乔治城的一处联合国教科文组织世界遗产地,周围环绕着19世纪英国殖民时期的复杂而美观的建筑。威望酒店的独特设计受到殖民历史带来的文化影响,通过精致的建筑和室内空间来提供令人难以忘怀的住宿体验。酒店距离槟城国际机场25分钟车程,可直接步行至槟城著名的文化地标和热门景点。除了162间客房之外,酒店还配备全日餐厅、无边界屋顶泳池、活动凉亭和露台,以及充满活力的维罗利亚风格的宴会厅和商业长廊。
▼酒店外观

▼威望酒店的独特设计受到殖民历史带来的文化影响

酒店名称“The Prestige”旨在彰显优雅且精致的品牌形象,同时受到了同名电影《致命魔术》的启发,将维多利亚时期的风格与幻觉艺术进行了结合。浮现、消失和漂浮等错视元素被巧妙地引入整个酒店空间,并体现在一系列室内细节上,例如与传统建筑相呼应的地面图案、看似由球体支撑的定制接待台,以及客房中隐藏的暗门等等。在首层的落客区,接待区、玻璃屋餐厅和商店空间通过黑白相间的地面图案被统一起来,看上去像是在眼前消失又浮现。
▼落客区

▼接待大厅


▼与传统建筑相呼应的地面图案

▼接待区、玻璃屋餐厅和商店空间通过黑白相间的地面图案被统一起来


玻璃屋餐厅的设计灵感源于英国维多利亚时代的温室设计,可容纳110人用餐。格子图案被同时应用到金属框架的墙面和玻璃立面上,为餐厅赋予了如温室般的温馨氛围。沙发坐垫印有植物和与热带元素有关的图案,带来“热带伊甸园”般的独特气息。
▼玻璃屋餐厅



设计师沿着客房走廊使用了明暗交替的配色方案,打破了通常走廊体验的单调感觉。机械化的灯具以规则的间隔放置,在墙面上投下格子状的精致光影,为客人的行走体验赋予动态。
▼电梯厅

▼电梯装饰细部

▼客房走廊

酒店包含四种不同的房型:豪华标准房、尊贵豪华套房、阁楼套房(专为长途商务旅行人士或情侣设计,其一层设有宽敞的休息室,夹层则包含独立的卧室区域)以及豪华三人套间(包含一间儿童专用的小卧室)。
▼客房内部




多功能厅以槽纹玻璃围合,在维持光线渗透的同时保证了室内的隐私。无边界的屋顶泳池为欣赏落日提供了绝佳的地点,人们可以一边享用鸡尾酒,一边俯瞰教堂街码头和水面的风景。屋顶的界墙被抬升以保证私密性,同时为在平台上晒日光浴和在凉亭休闲室饮酒的客人们提供了遮蔽。
▼多功能厅


▼屋顶平台概览

▼屋顶休闲凉亭

▼无边界屋顶泳池

▼首层平面图

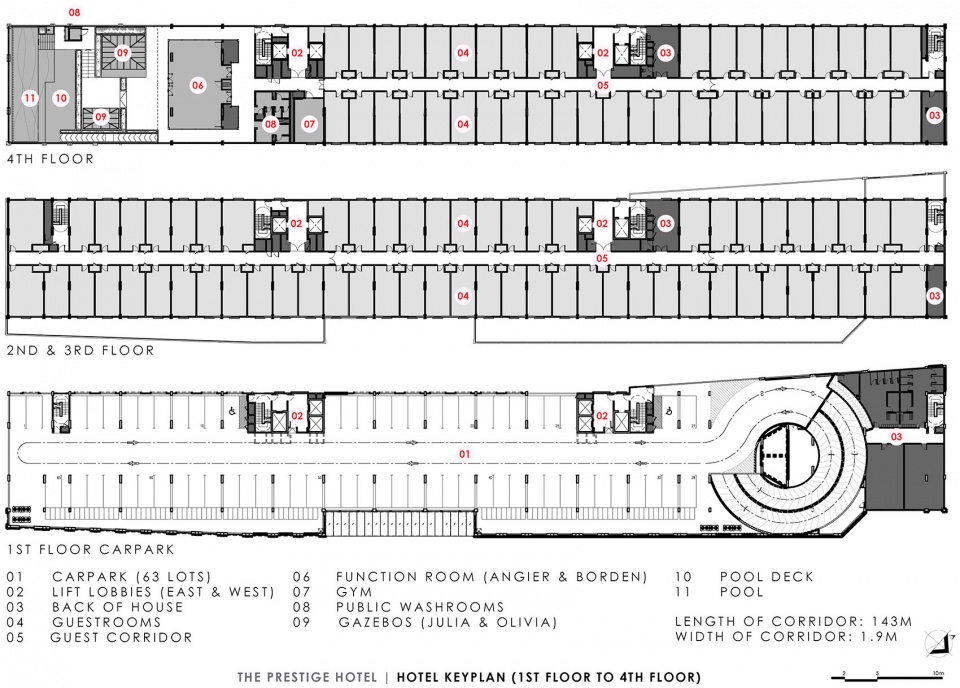
▼酒店平面布置图

▼剖面图

项目名称:乔治城威望酒店
项目地址:马来西亚请乔治城
设计公司:Ministry of Design
空间主材:石材 金属 钢 玻璃
编辑版权©灵感LAB,禁止以灵感LAB编辑版本进行任何形式转载

关注公众号

关注抖音号

九寨沟日赛谷丽思卡尔顿隐世酒店 · 四川 | 中国建筑西南设计研究院有限公司 + WATG建筑设计事务所

阿那亚入户大堂·三亚 |是所设计

容居·沙港田园民宿 · 上海 | 得当设计

Mountaintop Bilpin 度假屋 · 澳大利亚 | IAPA

凯州新城中央音乐公园-婚礼堂及酒店 · 四川德阳 | STUDIO QI建筑事务所

丹棱老峨山居度假酒店 · 四川眉山 | 門口建筑工作室