



















▼交错的楼梯连接不同房间

▼室外餐厅


▼室外客厅


设计关注天空。每个庭院的交接处都设有不同形状、尺寸和材料的垂直天井。连接室外餐厅和室外卧室的是一个由层层竹材组成的长方形空间;室外餐厅与室外客厅间的过渡空间则是一个椭圆形的白色混凝土庭院。在这些空间中,游客可以抬头望向天空,感受阳光的温暖。
▼室外客厅旁的白色庭院

▼可以看到天空的过渡空间


Sala Chaweng酒店沿街侧共有四种房型,分别是329平米的花园双床泳池套房,181平米的花园单床复式泳池套房,77平米的花园泳池别墅和45平米的花园复式阳台房。建筑师还未每个房间设置了各种各样的物件,如灯具、沙滩包、藤架和打开抽屉用的绳结等。每个房间都拥有一个私人后院,游客可以躺在私人泳池边的巨大室外圆床上休息。Sala Chaweng酒店的室内空间仿佛是室外环境的延伸,反之亦然。
▼泳池区


▼客房外观

▼立面细部

▼客房之间的弧形阳台

▼楼梯与开洞

▼屋顶洞口与空间对应


▼带有私人泳池的后院


▼阳台


▼客房室内




▼墙面细部

▼夜景


▼平面图

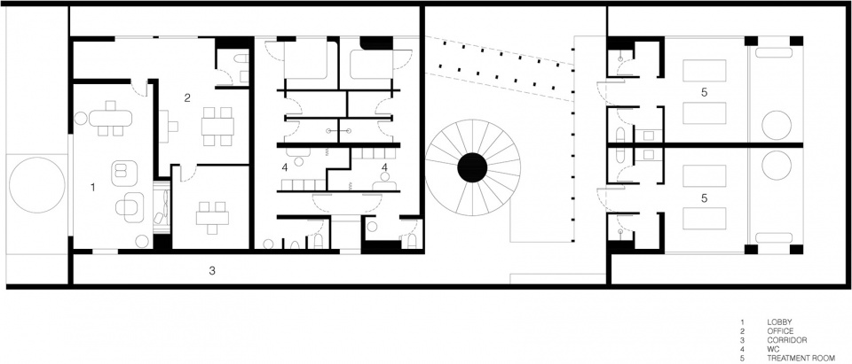
▼spa区平面图

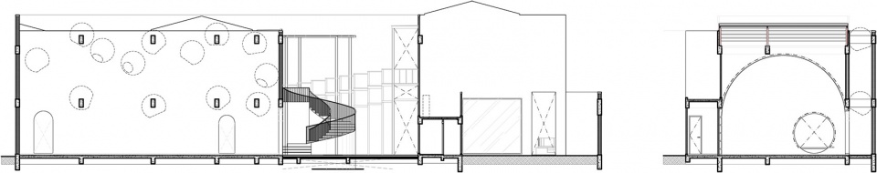
▼spa区剖面图

项目名称:萨拉苏梅查翁海滩度假村
项目地址:泰国素拉塔尼苏梅岛
设计公司:Onion Design ASSOCIATES
项目年份:2019年
空间主材:混凝土
摄影师:Wworkspace
编辑版权©灵感LAB,禁止以灵感LAB编辑版本进行任何形式转载

关注公众号

关注抖音号