品牌印象 | Brand impression
项目位于深圳新洲同创汇写字楼1楼。初识KUDDO是在一个 15平的集装箱,他把一群喜欢咖啡的人装了进来,通过不断酝酿发酵,配以生猛的闯劲和丰富创造力,生成了现在颇具规模的咖啡品牌。
▼外立面

这也是我们在设计上考虑的切入点,同时结合门店所在的社区环境,以地下车库场景作为概念思路,通过硬朗坚实的线条、引人注目的翻板门来体现创意性和识别度。
▼店铺室内外立面

▼咖啡店的动态外观

车库既是现代生活日常的空间,也是动作片中激烈枪战与追杀的常用场景,还代表着内心的自由与冒险。原本的空间只是一个普通容器。
▼外立面细部

设计者秉承用场景来叙说品牌故事的理念,通过自己对品牌的理解给了他最初的定义,这就变成了一个拥有无限可能的精神世界,剩余的便完全交由每一个人自己体验表达。
▼店铺立面细部

▼室内外摆区

设计策略 | Design strategy
门店是品牌的舞台,它从城市生活中汲取灵感,拓宽了品牌体验的通道,进而完善了它的“表演”。场景化的设计策略的真正目的是把更多的关注汇聚到品牌发展上,调动人们对于这个品牌的感官想象。

门店是品牌的空间故事,一栋建筑物,一扇窗户,一张桌子,甚至一个门把手的特写,都是有力的空间体验,体验者也会把思绪转到建筑之外,跳出作为物质形式的建筑空间,唤起内心的画面与情感。
▼室内走廊

原场地拥有相对方正的空间形态,我们利用翻板门打破其本身的封闭,不仅提供了更多日照机会,还在门店的立面创造了一个充满惊喜的空间:敞开的立面,带来偶遇、相聚与合作的机会。
▼吧台细部

上翻的门板将立面与天花板进行了连接,使公共走廊得以从视觉和感官上延伸至室内,使它可以成为一处安顿自我的精神角落,让人们从空间中汲取灵感和能量。周边商品的展架同时面向室内及公共走廊,让品牌的气息感染每一位客户与行人。
▼展架与座位区构造细节


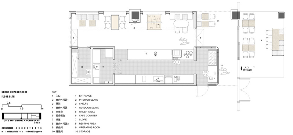
▼平面图

项目名称:KUDDO咖啡店(新洲同创汇店)
项目类型:餐饮空间设计、咖啡厅设计、主题餐厅设计、门头设计、店铺外立面设计、陈列道具设计、主题空间设计、IP场景设计
项目地址:中国 · 深圳
客户:深圳市库豆餐饮管理有限公司
室内设计:上海叙室设计咨询有限公司
主创及设计团队:杨嘉惠
建筑面积:96㎡
设计年份:2022.08
建成年份:2022.12
材料:防火板、定制金属漆、肌理漆、微水泥、定制车库翻板门
摄影版权:深圳市肉山文化传媒有限公司
感写观览、登录灵感LAB账号、点击文章顶部🤍可收藏案例
更多该设计公司案例,请点击 → 上海叙室设计咨询有限公司
编辑版权©灵感LAB,欢迎转发,禁止以灵感LAB编辑版本进行任何形式转载

关注公众号

关注抖音号