
UP是位于沈阳的一家潮流服装买手店,白菜受UP主理人委托设计沈阳的第二家实体店铺。项目位于沈阳长白岛,是一间带有庭院的门市,外立面完整,具有良好的私密性。



空间抓住品牌名字的意符,创造一种升力。像轻盈的线,不被边界所限制、不被重力所限制、不被选择所限制。我们希望空间元素像漂浮的线一样,在潮流中守一片失重之地,在变化中寻求永恒。




线是织物的组成成分,与品牌、风格、 产地无关,是一种客观的存在。我们提取了线作为买手店的构成贯穿整个空间,体现品牌无时无刻在对最本质的构成元素致敬。


线构成了空间内的装置和功能,我们使用不锈钢圆管打造空间内全部功能体系,通过交错与叠加,形成不同陈列属性的平面,与地面错落的体块切割线条,创造出多样的光影角度。




通过轻盈的衣杆装置,提供给人悬浮感、失重感,摆脱重力的气息。空间内的其他功能性需求也通过一种反重力的手段呈现,处处加深观者对与品牌意符的认知。



在设计中打破原始平面图的限制,通过线将不同的空间“缝”在了 一起。模糊了空间与空间之间的隔阂,用镜子拉伸了空间的维度, 用装置的手段将空间打破成为更大气场的整体。



我们希望UP的空间呈现是客观的,无论潮流如何变化,都是能够作为深沉的底色存在。
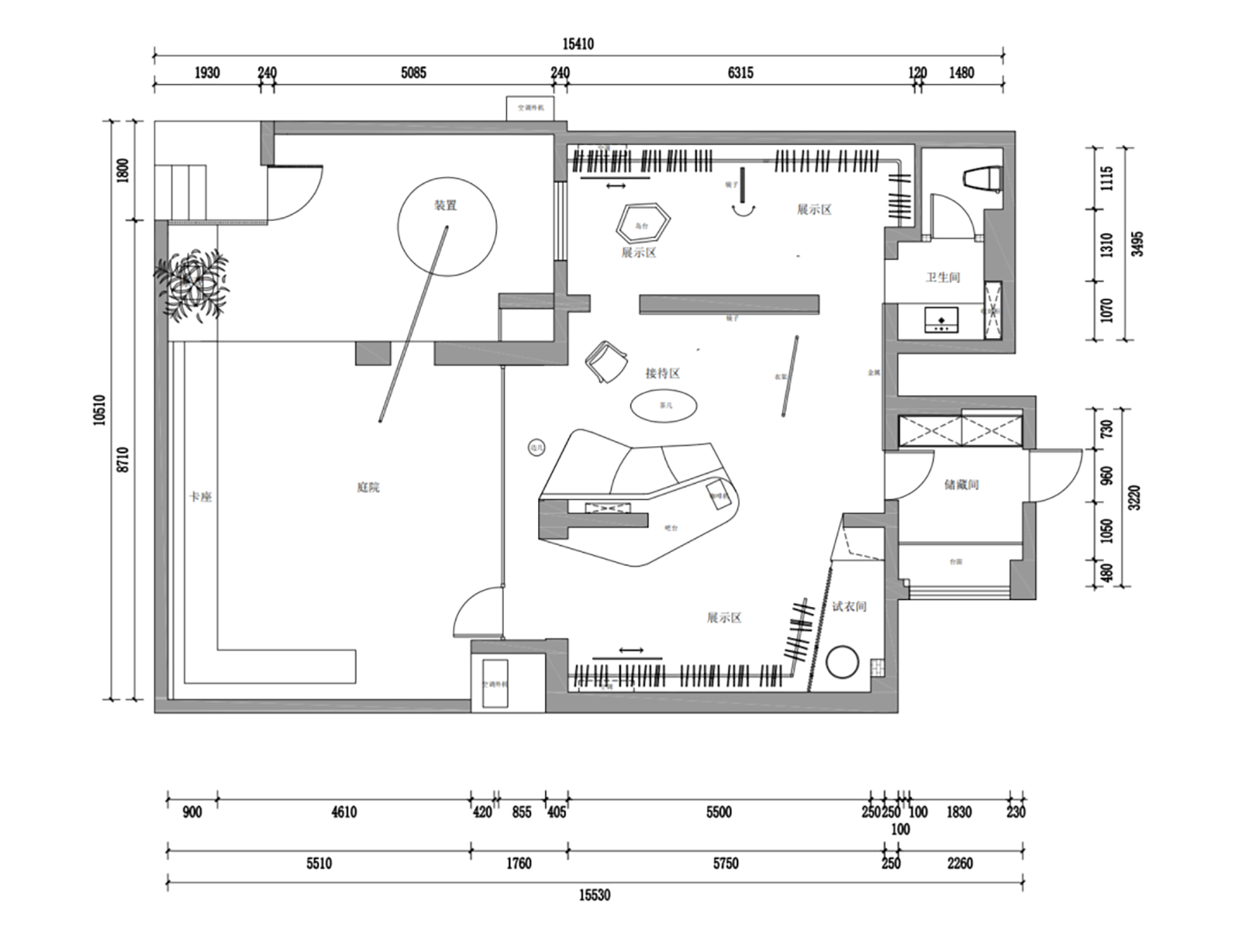
▼平面图

项目名称:UP买手店
项目类型:商业空间设计、网红店设计、零售店设计、服装店设计、买手店设计、连锁店设计
项目地址:中国 · 沈阳
客户:UP买手店
室内设计:白菜设计
建筑面积:158㎡
建成年份:2023年
合作方:沈阳博森建筑装饰有限公司
材料:不锈钢管、瓷砖、微水泥、水洗石、肌理漆
摄影版权:图派视觉
感写观览、登录灵感LAB账号、点击文章顶部?可收藏案例
更多该设计公司案例,请点击 → 白菜设计
©非特殊说明,文章版权归原作者所有
编辑版权©灵感LAB,欢迎转发,禁止以灵感LAB编辑版本进行任何形式转载

关注公众号

关注抖音号

“Soothin素庭”家具旗舰店 · 深圳 | BloomDesign绽放设计

泡泡玛特全球旗舰店 · 上海 | 唯想国际

周黑鸭SI设计 · 中国 | STUDIO DOHO

Dotcom Coffee青岛海边店 · 山东 | 龙工作室 Atelier LOONG

MYbarre健身房-悟锦世纪大楼 · 上海 | hcreates罕创建筑设计有限公司

Tomacado花厨 · 杭州 | 梁筑设计事务所