“仓中仓”媒体发布中心是一个旧工业建筑改造更新项目。项目位于杭州市老城馒头山,是对一栋空置的18号老军需仓库的改造,业主博乐设计是一家非常有影响力的工业设计公司,希望将老仓库改造为工业设计品展厅和媒体发布中心,可以满足创新工业产品展示、小型艺术展览、季节性工业新品发布活动、和艺术讲座沙龙等。
▼“仓中仓”媒体发布中心正入口

▼展示长廊


初入这个空间,映入眼帘的是全木结构支撑的坡屋顶屋面、直接且有效的三角形结构、纵横交错的搭接关系。仓库在之前已经进行过一轮改造,在屋脊中间做了玻璃顶,有非常充沛的天光进入室内。我们希望保留场所完整的信息:其作为军队老仓库的历史印记,和其被改造过后所留下的痕迹。这就需要我们深度挖掘原有场所独特的空间魅力,强化这种木结构自身的力量感与并充分利用玻璃顶引入的自然光线,形成一个独属于它的内部空间,同时这一空间有可以服务于工业品的展示和新品的发布需要。
▼新旧结构的对话


将其命名为“仓中仓”也来自于对“仓”这个文字本身的着迷,“仓”的顶部是结构,中间是入口,我们也可以从文字的结构中看到“仓”是一种对结构最真实的表达,这也是由于“仓”自身重在储存而非居住的本质特征,传统居住建筑中极少有从山墙面进入房子的,但仓库是可以的,所以仓库反而可以出现可以像西方巴西利卡一般单纯的纵深空间,而这种纵深也是由结构最直接的组构而成的。
▼新旧结构细部

我们希望“老仓”中的“新仓”是一种全新的巴西利卡,它的序列可以强化“仓”的本质特征,强化空间的纵深感,因此我们通过分段错位的方式来加强纵深的空间层次,强化空间的无限延伸感。
▼轴测图

▼内部坡屋面

仓库原本是储存物的地方,但在改造后的空间中它也是展示“物”的地方,这也突出工业品最本真的属性——也就是其作为“物”的属性。“物”的价值在于创造,以心和手合一的状态去赋予物体灵魂,赋予它额外的价值。这与我们创造的这个空间的状态很像,“新仓”的建造也是挖掘其空间原本的价值,赋予灵魂的过程,而非粗暴地改变它。
▼“物”的承载-艺术品展示台


“仓中仓”的中的“新仓”与“旧仓”的关系是动态的。他们不仅仅是一种含有的关系,设计上不希望它局限于一种体量上的包含,而是得到一种交错关系。我们希望两种结构在某一些部分可以相遇,可以交叉在一起。在新物与旧物的关系中,不仅仅只有对比或是融合,也可以是一种更为复杂的交错关系。
▼新结构与老结构直接的“框选”关系


因此我们将“新仓”的结构、新的坡屋顶关系从地面延伸上去,向上框选了原有结构最复杂的交接部分,让新的屋脊部分将老结构的交叉点框套住,将其“装裱”了起来,并以此来强化人对于结构复杂性的感知。旧结构自上而下,新结构自下而上,两者交错在中间区域,形成了一种全新的对话关系。同时这种交错关系不仅局限于实体的结构中,既有空间中由于天窗的存在,自然的光线是自上而下的洒下的,而新结构的灯光则是自下而上的。反打的人工灯光与自然光线又形成了另外的一层的交错和框选。
▼顺应屋面坡度的路演剧场



“仓”是一种结构包裹的层级关系,在结构层层降低,也是新结构包裹最密实的展示区中,反而出现了与最外部沟通的窗口,他们以取光孔的方式连接到原有建筑的窗口上,将窗外的景观和光线重新引入内部,这是一种正负形不断交错转换的关系,他也引导了观察者在不经意间得到一些跳跃式的视觉线索,我们希望人对这一空间的体验是动态且连续的。
▼产品展示区中与外界沟通的取光孔

▼茶具摆件

▼结构细部


顺应着新“仓”字形的屋顶坡度,自然地形成了一个立体的路演剧场,整个剧场阶梯顺着屋面的坡度一行行的排开,人可以顺着坡度落座,这个剧场空间可以满足绝大部分工业新品发布的需求。人在感知不同高度的过程中,也会更加深刻的意识到这种结构背后的潜力,在不同的身体状况下感受这一屋顶坡度。也在这一感知的过程中逐渐明晰:新的“仓”字结构虽形式简单,但其背后确实与功能使用、腔体空间、息息相关的部分。
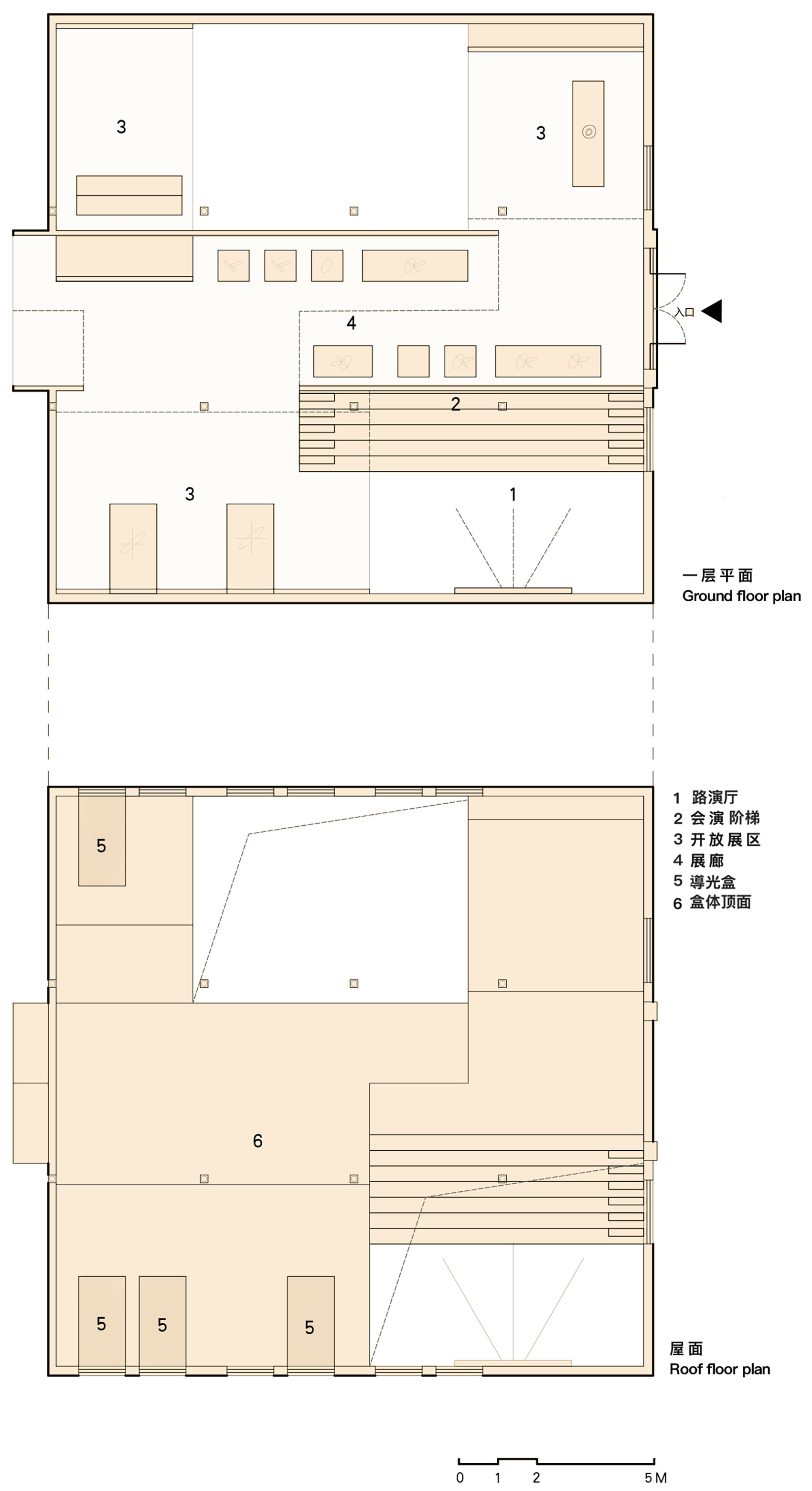
▼平面图

▼剖面图

项目名称:仓中仓”展示中心及媒体发布中心
项目类型:展览空间设计、展厅设计、空间改造设计、仓库改造设计
项目地址:中国 · 杭州
客户:博乐工业设计股份
室内设计/软装设计:植田·田之间建筑
主创及设计团队:方润武、王明皓、麻智超、徐大伟、李建超、吴承勋、李书博、郑逢雯
施工方:百谷营造
建成年份:2023.10
文案版权:王明皓、方润武
摄影版权:方舟
感写观览、登录灵感LAB账号、点击文章顶部🤍可收藏案例
更多该设计公司案例,请点击 → 植田·田之间建筑
©非特殊说明,文章版权归原作者所有

关注公众号

关注抖音号