这家店是TBL品牌的第一家门店的延续,原址位于北京三里屯,如今搬迁至街对面,完成了空间的升级与情感的延续。作为品牌的起点,它承载着许多人与人之间的连接。因此在设计之初,我们就希望打造一个既有力量,又具归属感的空间——一个让人感到“像家一样”的地方。
▼项目概览

公区:自由、松弛与记忆
在公区设计中,我们弱化传统健身空间的功能感,通过灵活体块划分营造流动而松弛的动线,让人能自由穿行、停留与交流。裸顶结构、无对缝材料与舒适家具共同营造出轻松自在的氛围,鼓励人们在这里放松身心。空间中也保留了老店的部分材料——金色拉网板被树脂封存,被裁切拼接,变成地面、天花与收纳背板;旧柜体拆下的刨花板则成为新的置物架与靠背。这些“老元素”以新的方式融入空间,不是为了怀旧,而是为熟悉的情感保留一份温度。功能完善的大吧台与开放的LAB区增强了空间的互动性,也为学员提供更丰富多样的使用体验。
▼酒吧与展示空间



▼储存柜区域

▼更衣室


团课教室:向上的结构,内在的精神
团课教室则呈现出截然不同的气质。原始斜顶通高的场地,被我们以定制钢构架结构重新演绎,使空间自然地向上生长,传递出探索身体潜能与精神升华的力量,鼓励学员在专注的同时不断突破自己的极限。功能性元素——照明、镜面、设备——被巧妙嵌入结构中,既不喧宾夺主,又有序统一。而涂有经典绿色的钢构件,则借鉴了欧洲旧建筑的色彩,带来一抹沉稳厚重的历史质感。
▼团课教室


▼细部

对比与统一:构筑精神空间的层次感
从自在松弛的公区,到庄重集中的教室,空间之间的对比与张力,使整体更富层次感,也给予使用者不同的情绪体验——既活跃开放,又沉静有力。
▼灯光效果



▼灯光效果


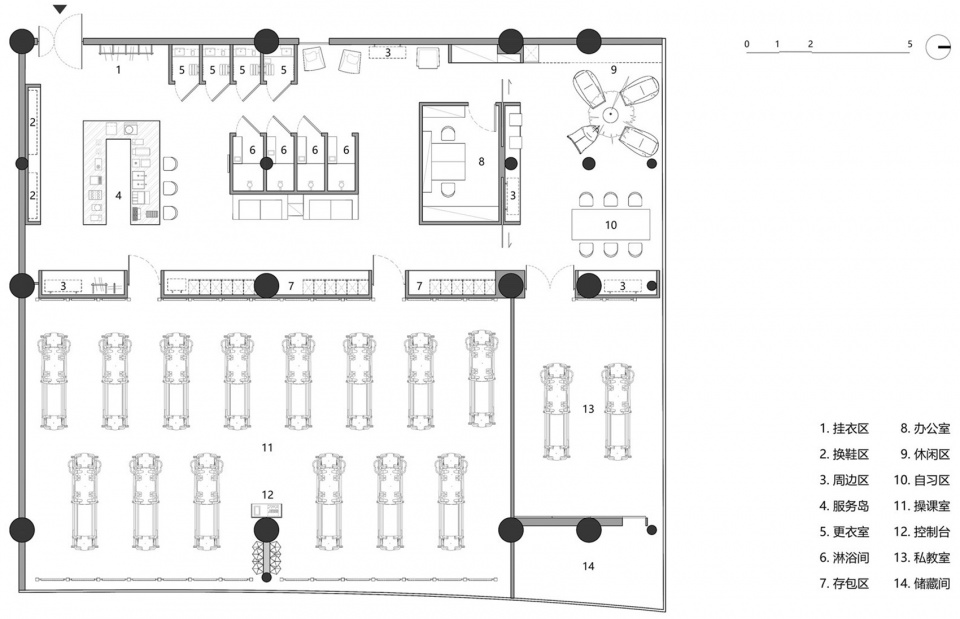
▼平面图

▼剖面图

项目名称:The Body Lab 北京三里屯店
项目类型:商业空间设计、健身房设计、普拉提店设计
设计公司:空间站建筑师事务所
设计时间:2024年12月-2025年1月
施工完成:2025年5月
主创设计师:李凌
项目负责人:廖惠琴
设计团队:向怀志、许辉、张杰
项目地址:北京市,朝阳区,首开幸福广场
建筑面积:375平方米
摄影版权:Spacestation
VI设计: Relative Design 相对设计
给排水设计咨询:宋颜波
暖通设计咨询:高飞
电气设计咨询:闫天雄
施工总包:北京东方盛泽建筑工程有限公司
摄影:金伟琦
客户 The Body Lab
品牌 :1. 插座:施耐德
2. 地胶:绿谷
3. 智能灯具系统:米家
感写观览、登录灵感LAB账号、点击文章顶部♥可收藏案例
更多该设计公司案例,请点击 →空间站建筑师事务所
©非特殊说明,文章版权归原作者所有。

关注公众号

关注抖音号

北平机器Peiping Machine精酿啤酒吧(纳福店) · 北京 | ATLAS

檀谷单向空间及十三邀小酒馆 · 北京 | BUZZ庄子玉工作室

EUEU餐饮店 · 广东惠州 | SORA索拉设计

Hello Tea Bar茶酒调饮研制所 · 杭州 | 哈喽品牌设计Hello Brand Design

Cuisine de Garden BKK主题餐厅设计·泰国曼谷 | ntegrated Field

Rick Bella意大利餐厅 · 广州 | 朴开十向