序章 | PROLOGUE
外滩延绵 延安东 苏州河外白渡桥
黄浦江十里洋场 … …
这个全国乃至远东的金融中心,经历百年沧桑,赋予北外滩穿越古今的色彩。当我驻足此地极目远眺,一览无遗的开阔,浮华摇曳杯中,空间塑造的平静,气质优雅从容,晶采轩如珍珠般瑰丽,晶莹岂能孤芳独赏!


▼立剖效果图


上海黄埔区海湾大厦,坐落于黄金三角北外滩,大厦建于九十年代,帝景晶采轩餐厅旗舰店位于大厦顶部楼层。原楼体塔尖顶造型结构,外轮廓宛如莲瓣,向上闭合,含苞待放。塔顶南北两侧立面原有的玻璃幕墙,为室内环境提供了通透开阔的视野,将黄埔江两岸陆家嘴、外滩景观尽收眼底。
▼区位图


▼通透开阔的视野


外滩建筑林立,业主多次寻找,钟爱此处景观迷人。几年间,我们一直探讨合适的设计方案,美人之美;最终双方构想达成,美美与共;于是历时三载,共同打造全新升级版的晶采轩餐厅旗舰店。


作为晶采轩系列餐厅的升级版,如何为客人带来不一样的尊贵奢华,感受非凡?
上海最好的观景位置条件,沪上餐饮界一大旗帜“晶采轩”餐厅,卓越出品与服务管理;这是一颗晶莹的珍珠,外滩缱绻一湾江水的平面就是晶采轩的剖面,条件至高无上有目共赏,我认为创造更开阔更通透的视野是整个空间塑造的核心要素。
▼共享空间

▼共享空间立剖

雕琢 | PONDERED
由于建筑建于九十年代,室外幕墙和室内钢架结构都有老化现象,首先改造室外幕墙和加固钢结构楼层,把整个外墙铝板幕墙全部换新,南北两侧玻璃幕墙分隔加大,使用更加通透保温玻璃,减小视野阻碍,达成空间视觉最大化要求。
▼中庭空间



室内原有四个大平层,空间略显平淡,于是舍去三套最好的观景房,整合打造一个共享空间;将三层的空间上下连接为一体,包间面对共享区的墙体都处理成透明玻璃,保证整个室内空间的视野通透。
▼包间和观景旋梯


拆除三层总计180平方,挑空作共享空间,营造气派宏大氛围。
面对如此高大的共享空间,巧妙利用设计的物理距离,使客人产生对观景的憧憬,自自然然走近玻璃幕观景的冲动,心理距离的借境,物理距离的引景,情境互融,造就美景胜收。
▼29层观景视野

贯穿整个空间的观景旋梯,鸟瞰外滩一湾江水,仿如漂浮的彩带,漫舞其中!这一联系29至31层的旋转楼梯于共享区的中心位置,楼梯面纤薄轻巧,挑度悬空设计,线条简洁流畅,设计使用玻璃扶栏,减去视觉的阻隔。
这是整个室内的焦点,而且它必须是一个雕塑,必须极致强调,赋予戏剧性、艺术性。
▼联系29至31层的旋转楼梯



▼餐厅


观景旋梯为整个室内提供更加丰富的空间层次,起点睛作用,同时分流了餐厅29至31层的部分人流,规范了整个餐饮的服务流程。
景、物、人三者的交流互动自然和谐,有条不紊。
▼俯瞰旋梯

在30层接待台及旋梯中间处,设有一个悬浮的球体装置,珍珠般瑰丽晶莹,与外滩东方明珠交相辉映,宛如波提切利笔下维纳斯诞生的美丽传说,灵动神秘,引发遐想浮翩。
南北两侧的幕墙玻璃,引入了自然光线,室内和室外的景色自然交互,让客人更好感受身临其境大上海的美妙。
▼30层接待空间


▼建筑剖面透视

▼悬浮的球体装置




室内气氛营造手法处理,选材使用大面积米黄天然大理石,自然仿古面,以少量的原木点缀,所有的室内物品尽显温润,含蓄。无需过多色彩跳跃,不跟室外景色斗艳,整个空间气氛保持素雅宁静。
四层设计11个包间,让其与公共区更加宽敞开阔;片区人流减少,空间环境更加宁静,整体空间处理通透,玻璃幕与外环境的融合,形成更强大气场。包间玻璃墙都设有电动柔纱帘控制开合,缓缓降下的仪式感,自由把握私密社交需求。
▼细节



过渡 | TRANSITION
大厦总共32层,本案入口位于27层,就餐层在顶部29到32层。由于大厦楼龄已有三十余年,楼内公共区域的环境感觉相对老化封闭,怀旧气息夹杂。如何处理入口这一过渡空间,作为整个空间塑造的起点,重要性不言而喻。
通过现场的仔细勘察,整体环境感受把握,我认为营造一种曲径通幽,柳暗花明的氛围成为必然且唯一的选择。
▼入口过渡空间细节

步入27层餐厅入口,与原楼宇环境迥异的景观跃入眼帘,自然粗犷的石头里别有洞天。闲庭信步间,传来山洞中的溪流声,游鱼浅戏,幽静自然,心中的惊喜如涟漪般泛起、荡漾。这就是陶渊明“世外桃源”的现代剧场版,故事书写简练流畅,引人入胜。
▼自然粗犷的石头里别有洞天





入口处和水池区域,以亚光与糙面的原石处理,自然斧劈,形成此境。原粗石切割对比,以强烈的现代构成手法,水池底用米黄石英小碎,造境若河道细沙,流水静溢,山间溪径更着幽境,小鱼野趣其中。
▼电梯间

餐厅专用电梯,以专属二维码的方式预约进入,这好比进入了时光隧道。直达30层,经过酒窖走廊,视线豁然开朗。在素雅白衣,高挑精致的侍者引领下,别致景观目不暇接,流连间已进入客人的专属空间。
整个导游过程体验,就是桃花源记的剧场航道,神秘美妙。
▼酒窖走廊



酒窖走廊同时也是电梯转换区间,故意拉长的空间距离;狭长进深所形成的慢镜头感;视觉味觉听觉的观感漫步其中……慢慢渗透至醇厚浓郁的餐饮气氛。
功能需求和审美需求得到完美统一的解决。
▼交通空间



北共享区 | NORTH SHARED AREA
▼剖面图

与南面宽敞强大气场共享空间不同,北面打造了29层至32层,4层联通的挑空共享,采用松散交错的平面布局,通透、狭长。
▼4层联通的挑空



▼挑空共享空间

在这里设计细腻,承接光线塑造出丰富精致的构造,如多菱镜交错。复杂通透的构造环境里,不同的角落可以观察不同的景色;空间构成,能使整个项目公共区的层次更为丰富,共生出更为浓烈艺术气氛。
▼丰富的空间层次


▼细节








▼分布在空间各处的当代艺术品





雪茄吧 | CIGAR BAR
▼雪茄吧剖面透视

雪茄吧,汇聚洽谈、休闲、阅读、品酒等功能,这区域以木材穿插构造和粗旷的石材结合,强有力的视觉符号把这里塑造成特征明显的区域。设计语言略显放松,同时也让整个餐厅的使用功能更为丰富。
▼木材穿插构造和粗旷的石材结合







盥洗室 | BATHROOM
修饰原建筑结构的基础上,以简洁明快的手法处理。圆型洗手柱盘、悬飘置物台、洁具用品都是经过充分沟通协调后所设计。更多的是考虑功能需求以及规范化管理、日常维护。
看似着墨不多却凝聚了团队大量的心血。
▼盥洗室




华灯初上 | LIGHT THE NIGHT
每当夜幕低垂,
窗外映射外滩与陆家嘴的灯光,
繁华尽收眼底,
这是餐厅中最重要的视觉体验。





在灯光设计方面的考量,室内灯光设计为柔和均匀的照明,在满足就餐需求的同时,其他点缀光线必须克制,不能过多影响室外景色的呈现。达至室内外环境互补延伸。





▼29层平面

▼30层平面

▼31层平面

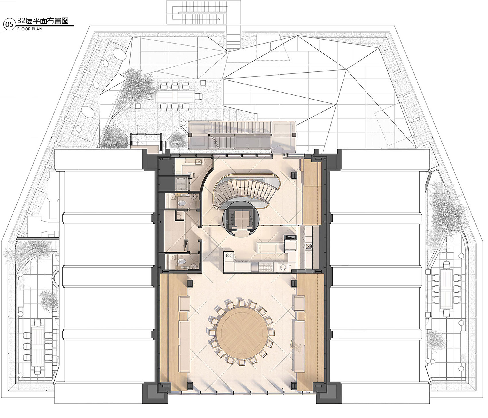
▼32层平面

项目名称:帝景-晶采轩
项目类型:商业空间设计、旗舰店设计、餐饮空间设计、中餐厅设计
项目地址:中国 · 上海
客户:上海景帝餐饮管理有限公司
设计方:纬图设计
主创及设计团队:李龙君、黄志彬、凌观伟、瞿群英、缪文俊、梁杰荣、罗黄敬洋
总设计师:赵 睿
设计管理:刘方圆
技术总工:李龙君
物料管理:何静韵
照明设计:PROL光石
照明设计:PROL光石
结构设计:容跃辉
传媒团队:伍启雕 何静韵 曲宏林 欧阳元勋
艺术藏家:车宣橋
建筑面积:2260㎡
材料:贵州米黄石、橡木、质感漆
摄影版权:伍启雕 张恒 TOPIA图派摄影
艺术作品:刘韡作品《九霄》 / 车宣橋作品 《放逐》/ 龚剑作品《女神》/ 吴山专作品《仰望这五个鸡蛋炒十六个西红柿的天空》/ 梁曼琪作品《移动方块》/ 陈英作品《被造型》/ 杨深作品《游园惊梦》/ 唐永祥作品《像三个分开的半身背影》/ 崔洁作品《大连电信枢纽大厦》/ 提尔曼斯Wolfgang Tillmans作品《Playing card》/ 汪建伟作品《寒武纪2号》 / 陈丽同作品《脐》/ 张如怡作品《暗色之物5》/ 关小作品《池塘》/ 尉洪磊作品《I#7 2019》/ 王思顺作品《铜启示》等,20余件艺术家原作艺术品
感写观览、点击文章顶部?可收藏案例
更多该设计公司案例,请点击 → 纬图设计
编辑版权©灵感LAB,欢迎转发,禁止以灵感LAB编辑版本进行任何形式转载

关注公众号

关注抖音号