当代的传统 | Contemporary tradition
安达鲁西亚浴场的设计使用了与帕尔马景观文化相关的现代语言,并尝试遵循传统历史浴场的精髓。
▼入口


花园,旧时的沉浸之地 | Garden, Previous immersion
就像在帕尔马历史悠久的浴场那样,沐浴者能够穿过充满活力气息的绿色立面,然后,揭开金色空间的神秘面纱。在这个空间外,黑暗被点亮,一个“洗礼池”正在等待游客的到来,并在这里享受全新的时光。
▼绿色的立面

▼洗礼池


凉爽的休息室 | Cold and relaxation room
在黑幕之后,就像历史悠久的浴场那样,一个由赭石色材质构成的拱形空间护卫着休息室。在弧形的木顶之下,浴池中,有一个宽大且温热的大理石长椅,这里还为前来浸泡的沐浴者提供凉爽的水和安静的氛围。
▼赭石色的拱形空间



▼温热大理石长椅

温暖的房间 | Warm room
在这里,身体沐浴在光和水之中。狭窄的拱券结构让人联想到传统的mocárabes屋顶。后面的背景中,一座石砌的“圣坛”从平静的水面中升起。拱券结构被自天窗照射下来的自然光线分割,使沐浴者沉浸在其中。
▼石头“祭坛”从水面中升起


汗蒸房间 | Hot and steam rooms
厚厚的石墙上有两个洞口,左边的那个,通向充满火热气氛的汗蒸房,右边的则是一个黑暗的小洞穴,引导沐浴者在金色天花板下的水池中充分浸泡和放松,收获梦境般的体验。
▼石墙上的两个洞口

▼金色的天花板

▼沐浴池

▼沐浴区

▼细节

体验过令人愉悦的按摩之后,返回干燥区的道路和水池区同样有趣,引领沐浴者回到最初的起点。
▼入口处手绘草图

▼休息室手绘草图

▼温暖的房间手绘草图

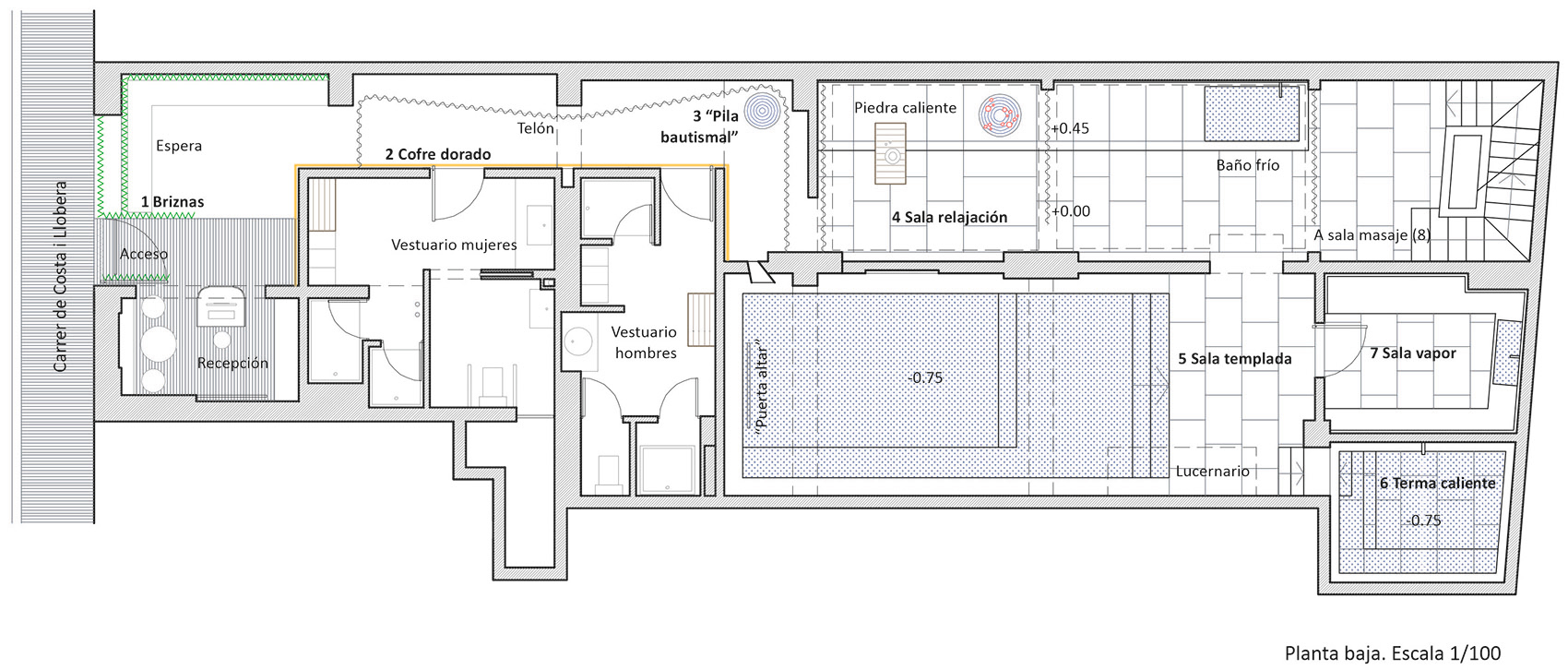
▼手绘主要空间平面图

▼平面图

项目名称:安达鲁西亚浴场
项目类型:商业空间设计、洗浴设计、桑拿设计、汗蒸设计
项目地址:西班牙
室内设计:WaterScales arquitectos
摄影版权:Fernando Alda Calvo
感写观览、登录灵感LAB账号、点击文章顶部🤍可收藏案例
更多该设计公司案例,请点击 → WaterScales arquitectos
编辑版权©灵感LAB,欢迎转发,禁止以灵感LAB编辑版本进行任何形式转载

关注公众号

关注抖音号

曲水兰亭度假酒店 · 上海 | 对角线设计

安达鲁西亚浴场 · 西班牙 | WaterScales arquitectos

Metung温泉 · 澳大利亚 | Splinter Society Architecture

水裹·汤泉-新天地店 · 杭州 | 对角线设计

“汤源温泉”休闲娱乐空间 · 杭州 | 对角线设计

艺术桑拿设计 · 芬兰 | Mendoza Partida + BAX Studio