发现一个场所的风格
有时比发现一个时代的风格
更重要
庆记澳门火锅是庆记旗下新品牌,澳门海鲜火锅业态,选址湘江之滨的保利西海岸。作为全新品牌,面对滨江商业竞争的升级,设计从商业洞察,场景架设,在地文化应用,艺术价值实现,商业街区活化多视角综合研判后,进行了这次探索实践。
▼项目区位


湘江边一块绕不开的石头 |

滨江金融区高速运转的城市节奏,周边欧陆建筑构筑的繁复,以及霓虹招牌和各类门头,让临街商业表皮呈现高密度的颗粒化现象,带来的问题是商业辨识度的锐减与记忆点缺失。设计通过一体化的构成感改造,带来建筑的整体性与放大感。改造后的建筑在光线下有着更多细节,硬扎充满力量,而光线与树木投影则改变着建筑的质感与形态。于是,人们在不同的时间来到场所,会因这种变化而反复解读建筑,这些变化着的创生过程,则成为场所建立的确定性。
▼建筑改造前

我们将项目形容为湘江边一块绕不开的石头。一方面是基于项目建筑改造后的辨识性;二方面考虑建立新品牌在火锅品类空间中的唯一性、排他性、短期不可复制性。





潇湘大道旁的弧面减速带 |
建筑首层入口内退出洄游空间,以便于人流更愿意亲近贴近。光线像自然之手,划出立面江浪般的弧线,硬朗的建筑于是有了恭谦的生动感,搭配粗粝厚重的石材,以强调建筑江石般的意向,并褪去新生品牌的脆生感。





一江水冲石 | 半部湘江史
长沙商业环境的活性在于敢为人先,这是基于湘江所孕育的楚地明强与血诚精神的总成。从在地性的植入上,空间黑白泾渭分明,接待台与造景江石是荆楚的硬朗勇武;曲面吊顶是湘水余波的书卷意向,柔和但充满韧性,空间塑形力与流动性也由此得到加强,并给予消费者更多解读场景的自由。







上下求索间 | 楚辞浪漫东风西渐
为保障营业区面积,楼梯在有限空间内,以现代构成主义折型上升直达3楼,并通过山水画高远手法造景,塑造路漫漫兮进取向上之精神,物化出《楚辞》里中国式的浪漫主义。公共空间,通过设立架空的世界观,以体现小空间里的大宇宙,消融物理空间的边界。设计尝试基于人们在实践活动对已知现实世界具体事物的看法和观点,融入人文宇宙观,去创造突破物理空间限制的感知。







架空世界观 | 小空间里的大宇宙
想象力比知识更重要——爱因斯坦。
天花繁星的深远,科幻蓝瀑的高远,涧槽横贯的平远。以 “三远”的室内山水,将湖湘文化中敢为天下先的诗哲浪漫想象,在有限空间释放出来。于是,空间体验打破了固化主题造景的焦点透视局限,让人们更愿意去开发不同的视角去体验这个架空世界观里的空间——高远的清明,深远的层叠;平远的冲融。





现代工业的技术发展,促成了人们对奇幻构想的可能性不断探索。吊顶艺术装置,是基于西方蒸汽朋克幻想,与东方万物可造哲学的统一,从而激活人们与空间的对话,并与空间形成关联。

中流砥石 | 2100mm下的一画开天
建筑从两层改三层后,带来的问题是营业区仅有2100mm层高。设计以白色玻璃钢包裹柱贯穿吊顶形成纵向层高拉升,横向延展成浪涌的砥石形态,以解决二楼空间尺度的紧缩问题,不锈钢顶面与地砖以镜面关系实现墨色消融的海天一色,空间变得流动而放松。




一抹光魅 | 就能燃亮内心的人文宇宙
悬空的岩石与彩色光带,以非定义的形式形成空间想象共同体。虽与现实世界阔远,但以一种人与自然同宗的宣告,体现出天真浪漫的诗哲想象;而这一切是以人们经验的理解为基础的——人确实可能与宇宙建立全面的联系,这是人们的真实感受:我们就在这里,我们就属于这里。




江流石不转 | 观川流不息
对街遥相呼应的保护文物建筑裕湘纱厂,是长沙工业时代变迁的见证;建筑的窗墙比保障了建筑结构的美感,保障了包厢里自然光切入的需要,并与滨江街景无缝交互。川流不息的街景,如同这个城市的商业,随时间切换着表情。而当空间扎根在文化的土壤里,则可生长出场所精神的中流砥柱,以抵御时尚潮流的冲击,保持文化滋养下空间的耐久性与独立性。




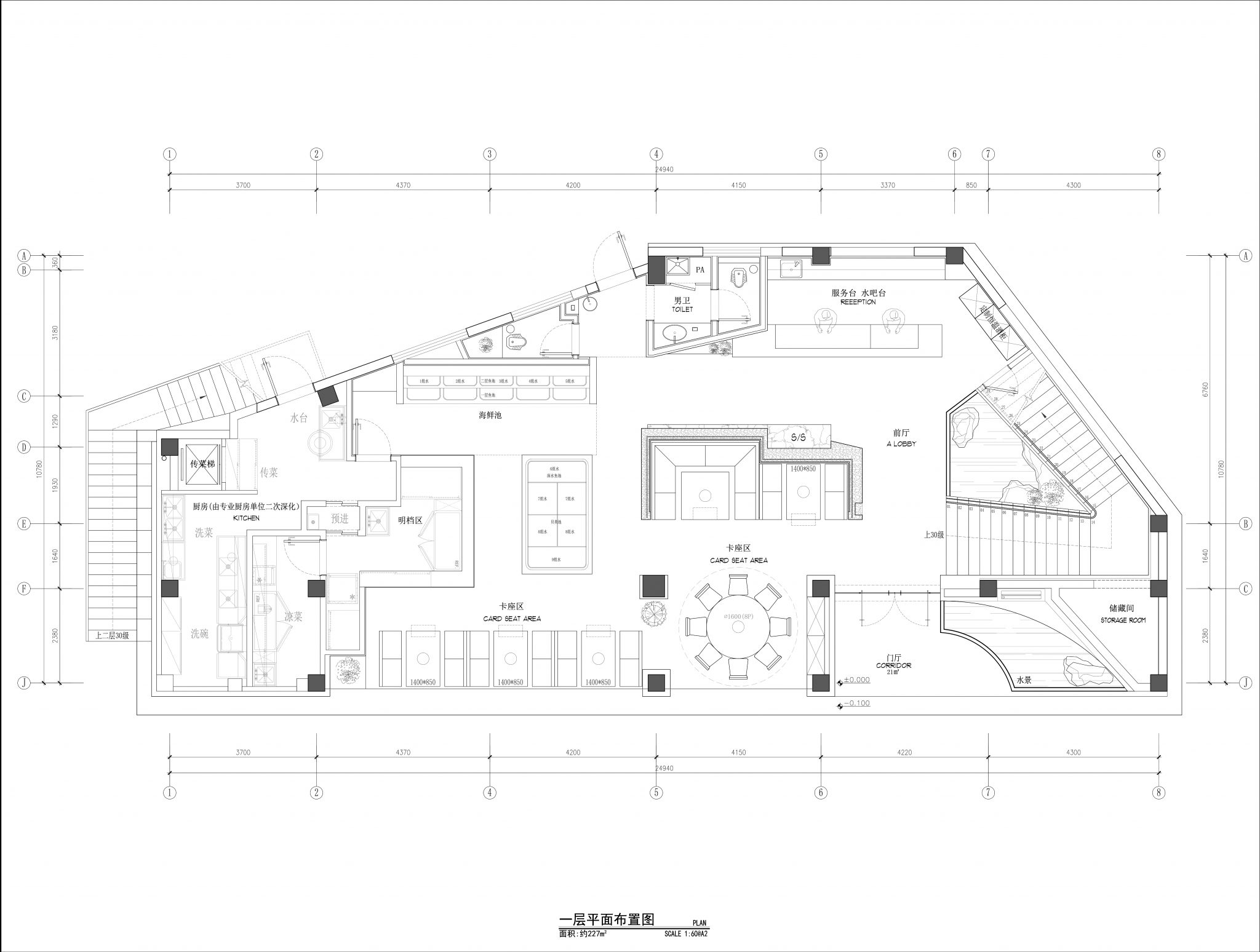
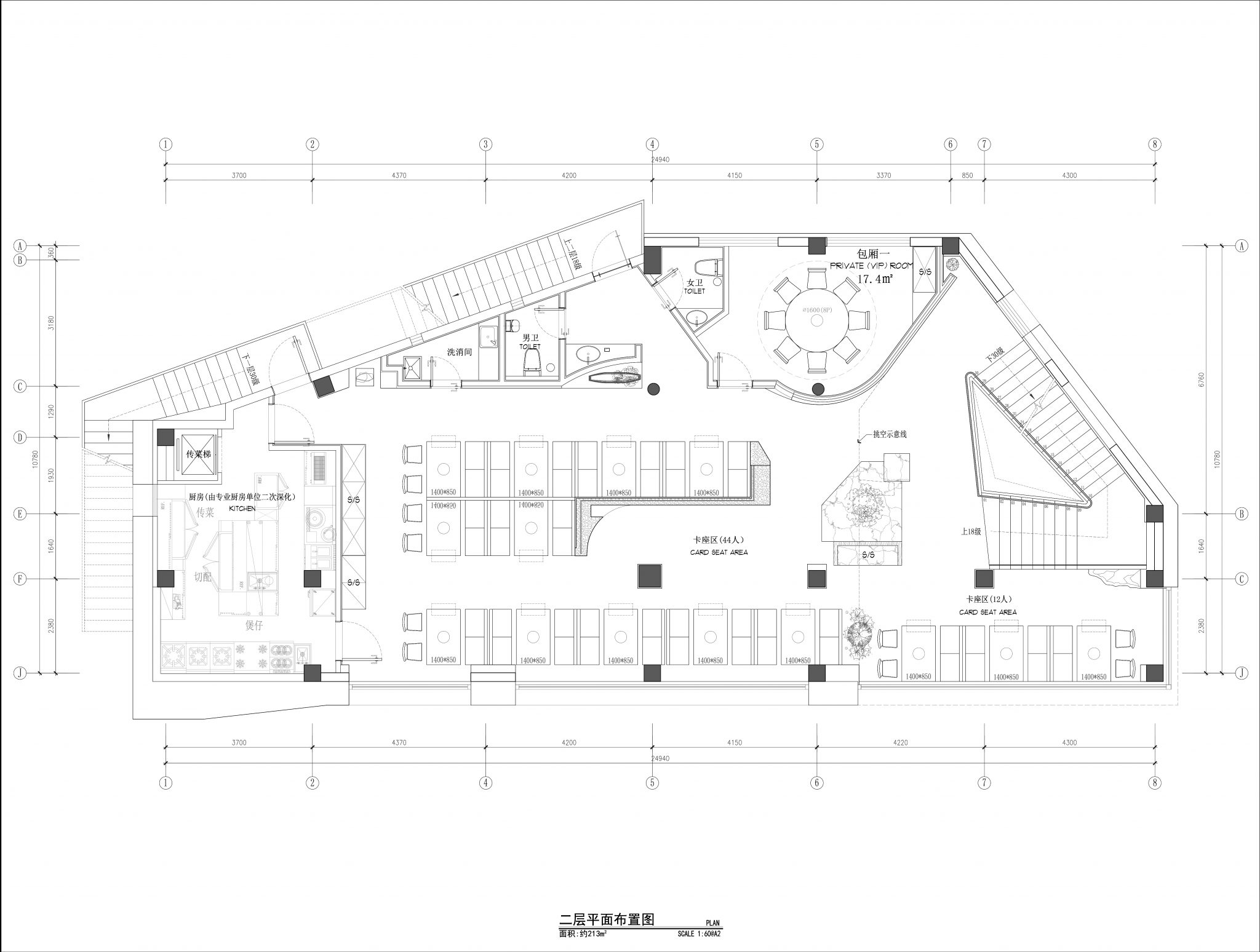
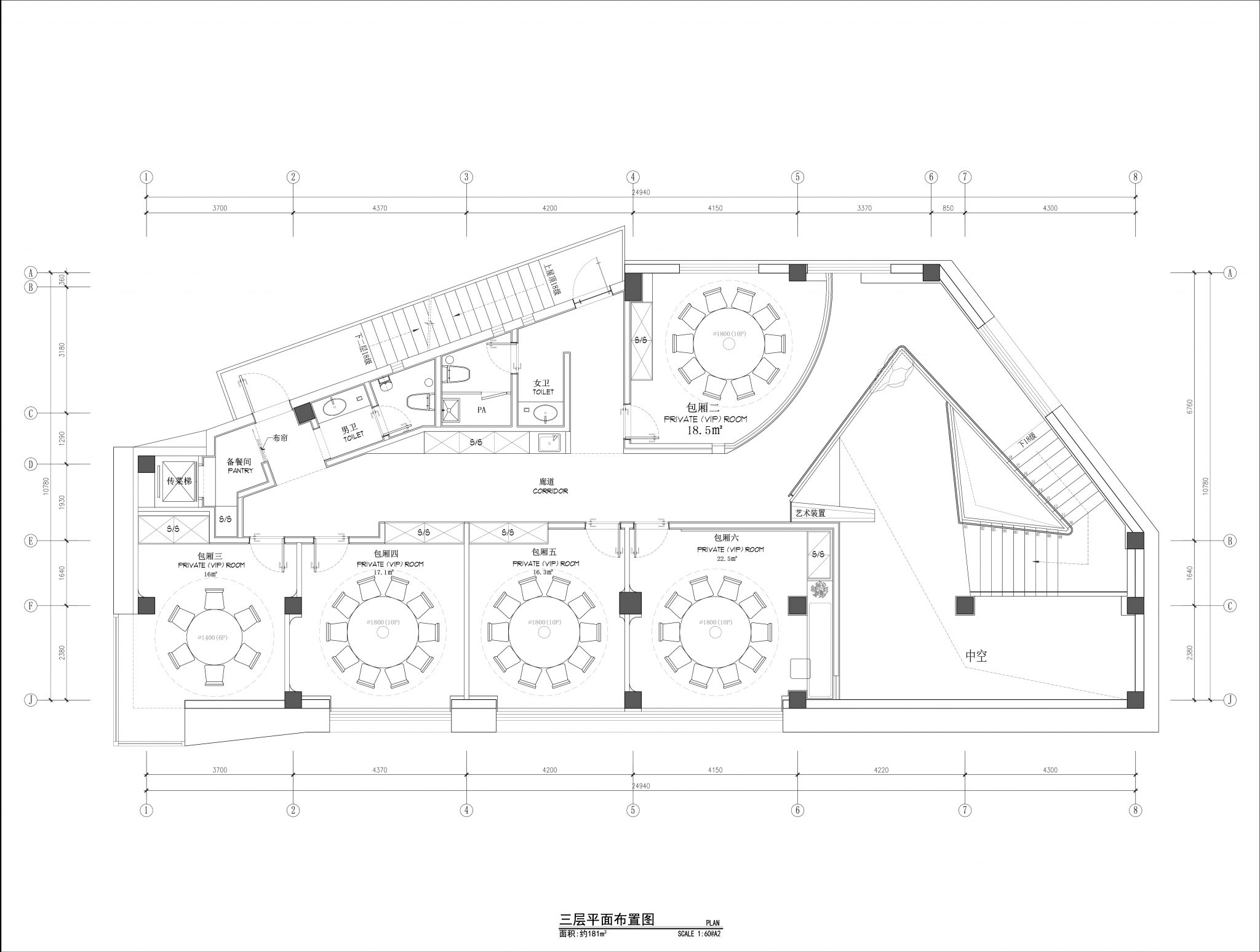
▼项目平面



项目名称:庆记澳门火锅
项目类型:餐饮空间设计、火锅店设计、中餐厅设计、空间改造设计、店铺外立面设计
项目地址:中国 · 长沙
室内设计:水木言空间设计(上海)有限公司
主创及设计团队:梁宁健
策划统筹:金雪鹏
建筑面积:621㎡
设计年份:2022.06
建成年份:2022.11
材料:不锈钢、艺术涂料、木纹金属板、幻彩玻璃、岩板、波浪板
感写观览、登录灵感LAB账号、点击文章顶部?可收藏案例
更多该设计公司案例,请点击 → 水木言空间设计(上海)有限公司
©非特殊说明,文章版权归原作者所有
编辑版权©灵感LAB,欢迎转发,禁止以灵感LAB编辑版本进行任何形式转载

关注公众号

关注抖音号